16/18
Paylaş
Resmi Orjinal Boyutunda Göster
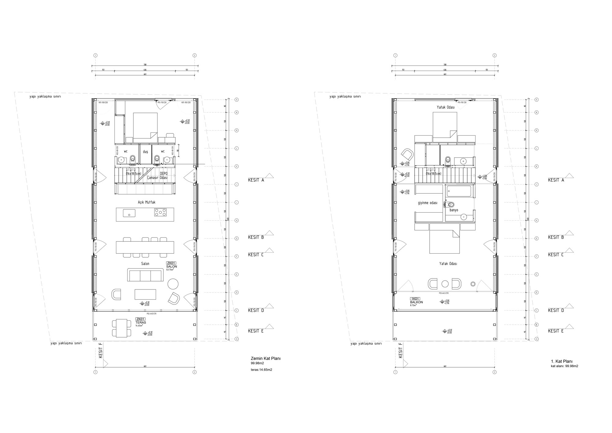
Ayvalık_Ev
Proje Yeri: Ayvalık, Balıkesir
Proje Ofisi: CAA Studio