21/23
Paylaş
Resmi Orjinal Boyutunda Göster
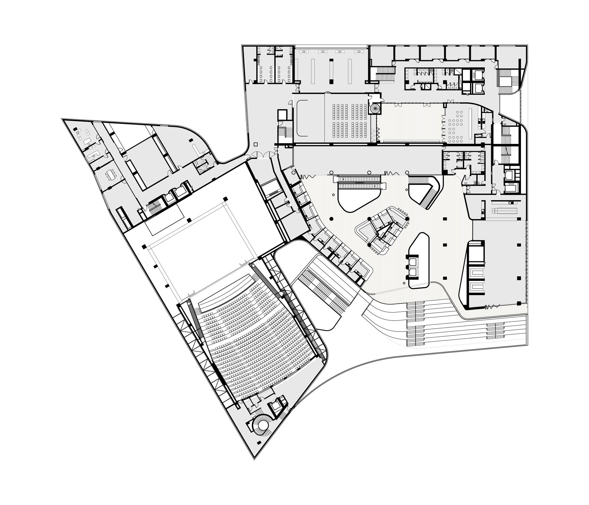
AntalyaDoguGaraji
Proje Yeri: Antalya
Proje Ofisi: Erkal Mimarlık