22/23
Paylaş
Resmi Orjinal Boyutunda Göster
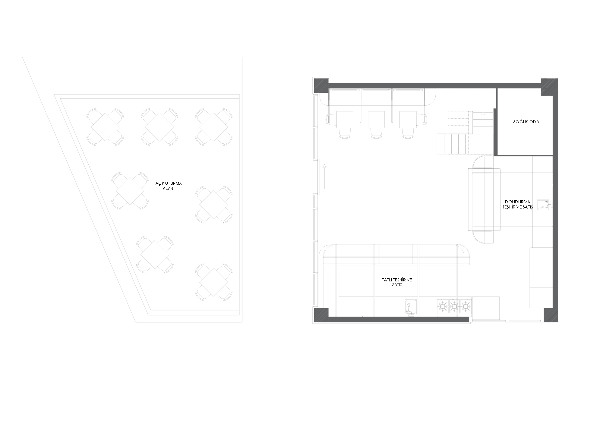
LoopFood
Proje Yeri: İstanbul, Zekeriyaköy
Proje Ofisi: Wand Works Mimarlık