26/27
Paylaş
Resmi Orjinal Boyutunda Göster
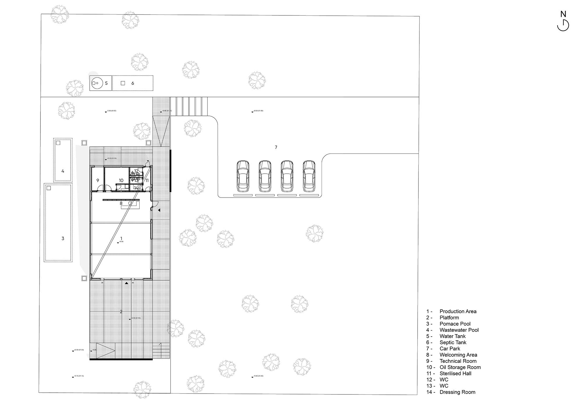
KinikOlive
Proje Yeri: İzmir
Proje Ofisi: Studio Evren Başbuğ
Tasarım Ekibi: Evren Başbuğ
İnşaat Bitiş Yılı: 2023