28/36
Paylaş
Resmi Orjinal Boyutunda Göster
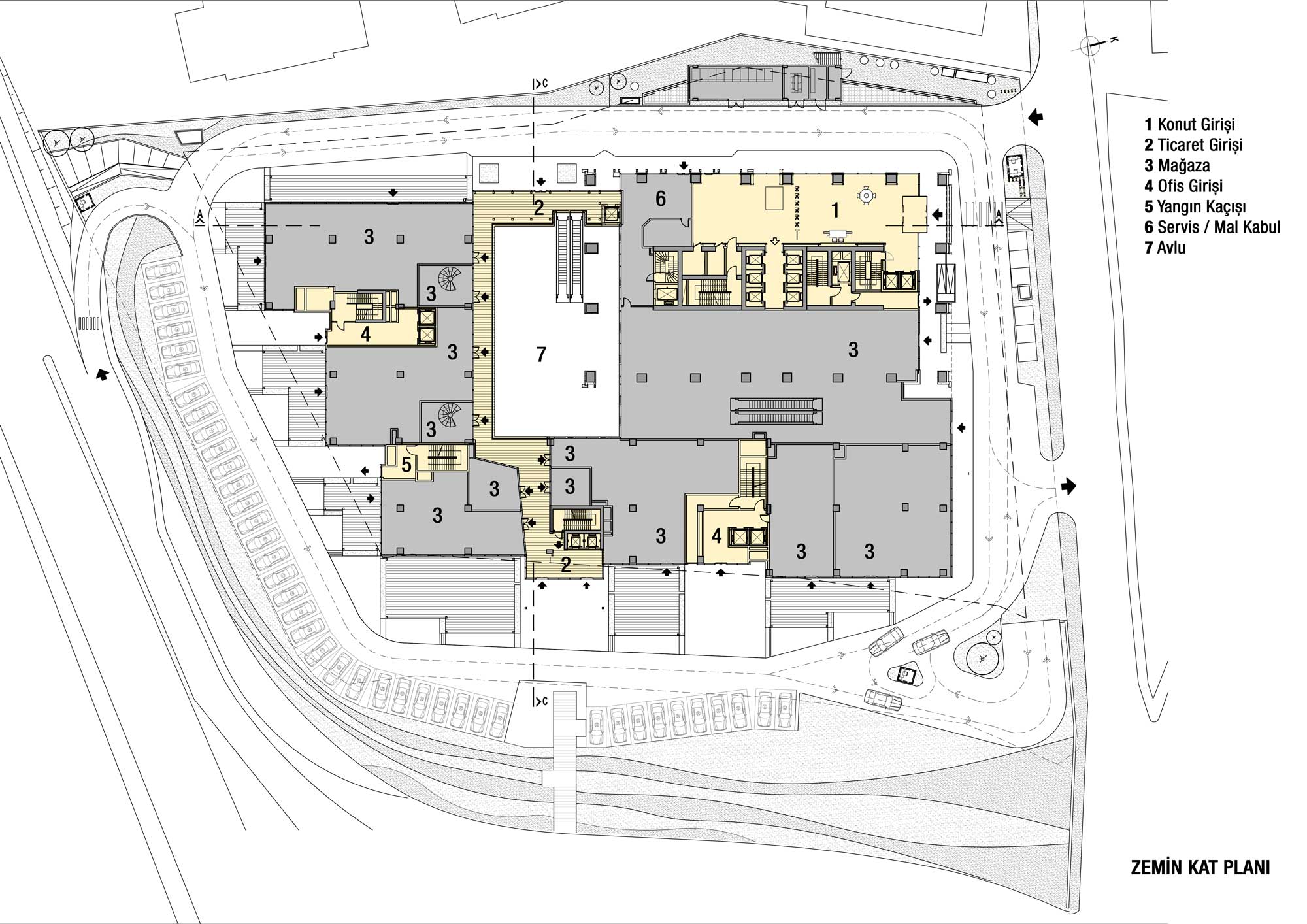
Mesa Koz
Proje Yeri: İstanbul
Proje Ofisi: Ergün Mimarlık
İşveren: Mesa