17/29
Paylaş
Resmi Orjinal Boyutunda Göster
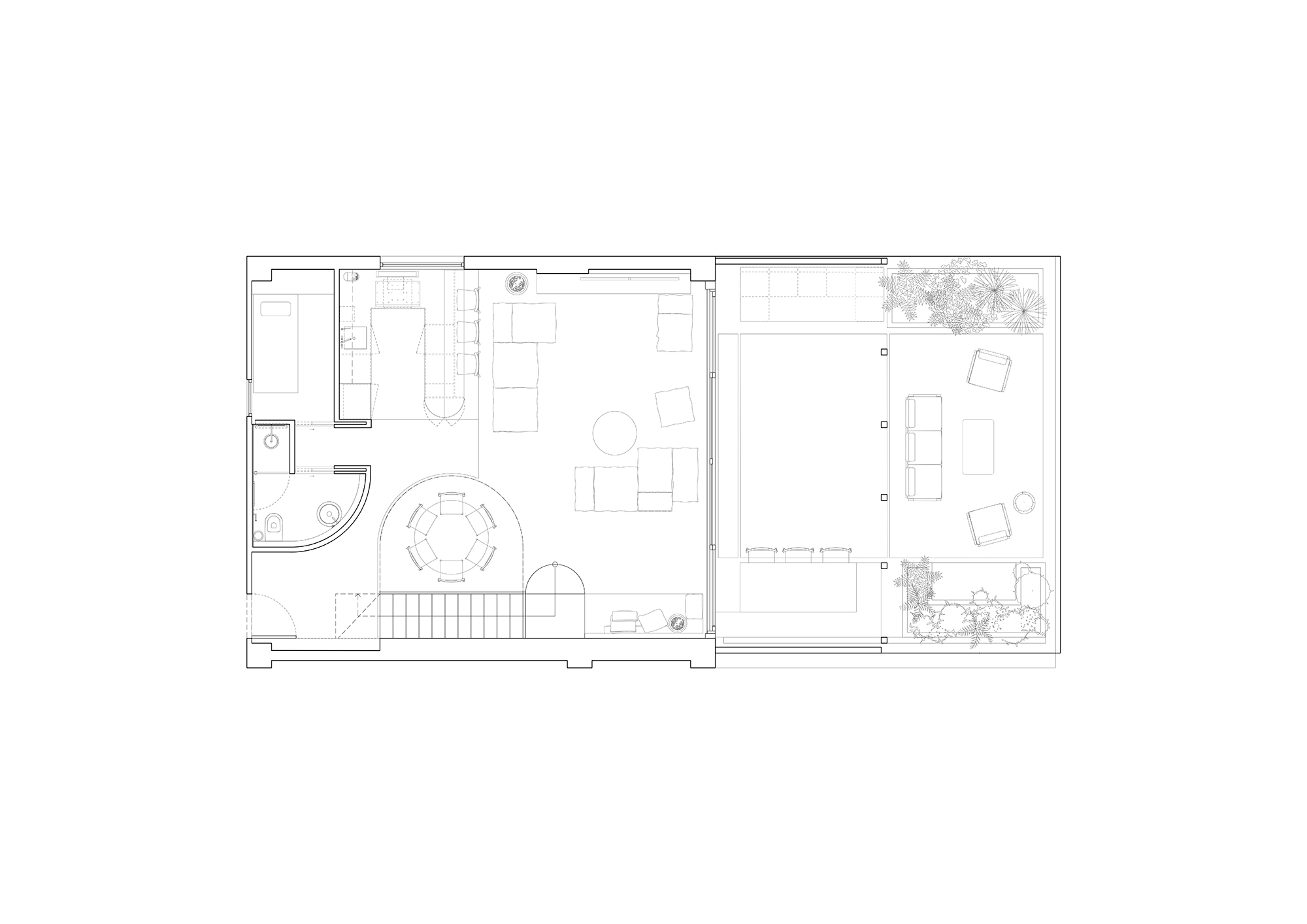
IlicaEvi
Project Location: Çeşme, İzmir
Project Office: Miskavi Architecture Studio (MAS)
Photography: Egemen Karakaya