13/17
Paylaş
Resmi Orjinal Boyutunda Göster
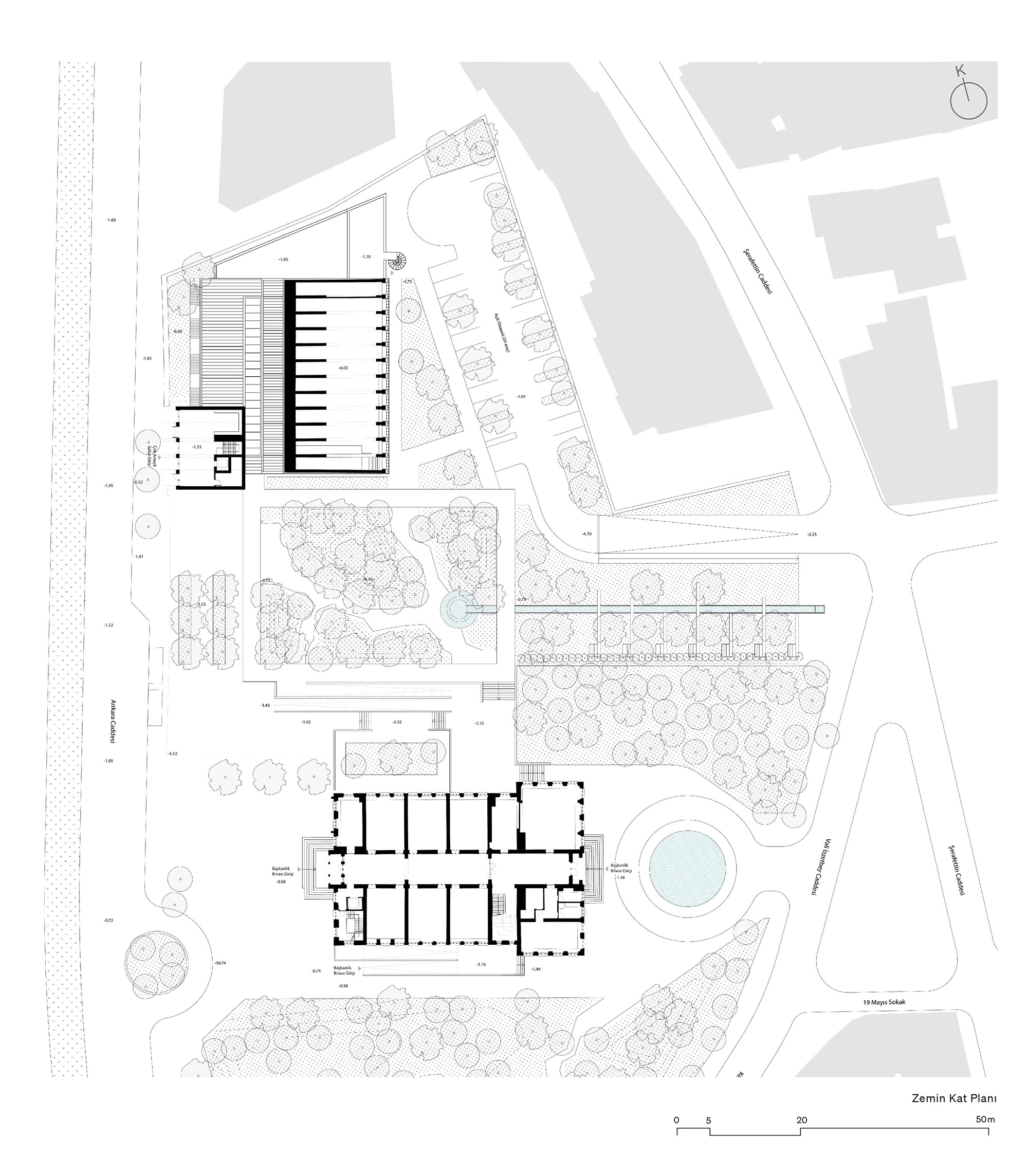
KonyaBaskanlikKompleksi
Proje Yeri: Konya
Proje Ofisi: Teğet Mimarlık
Fotoğraf: Egemen Karakaya