3/13
Paylaş
Resmi Orjinal Boyutunda Göster
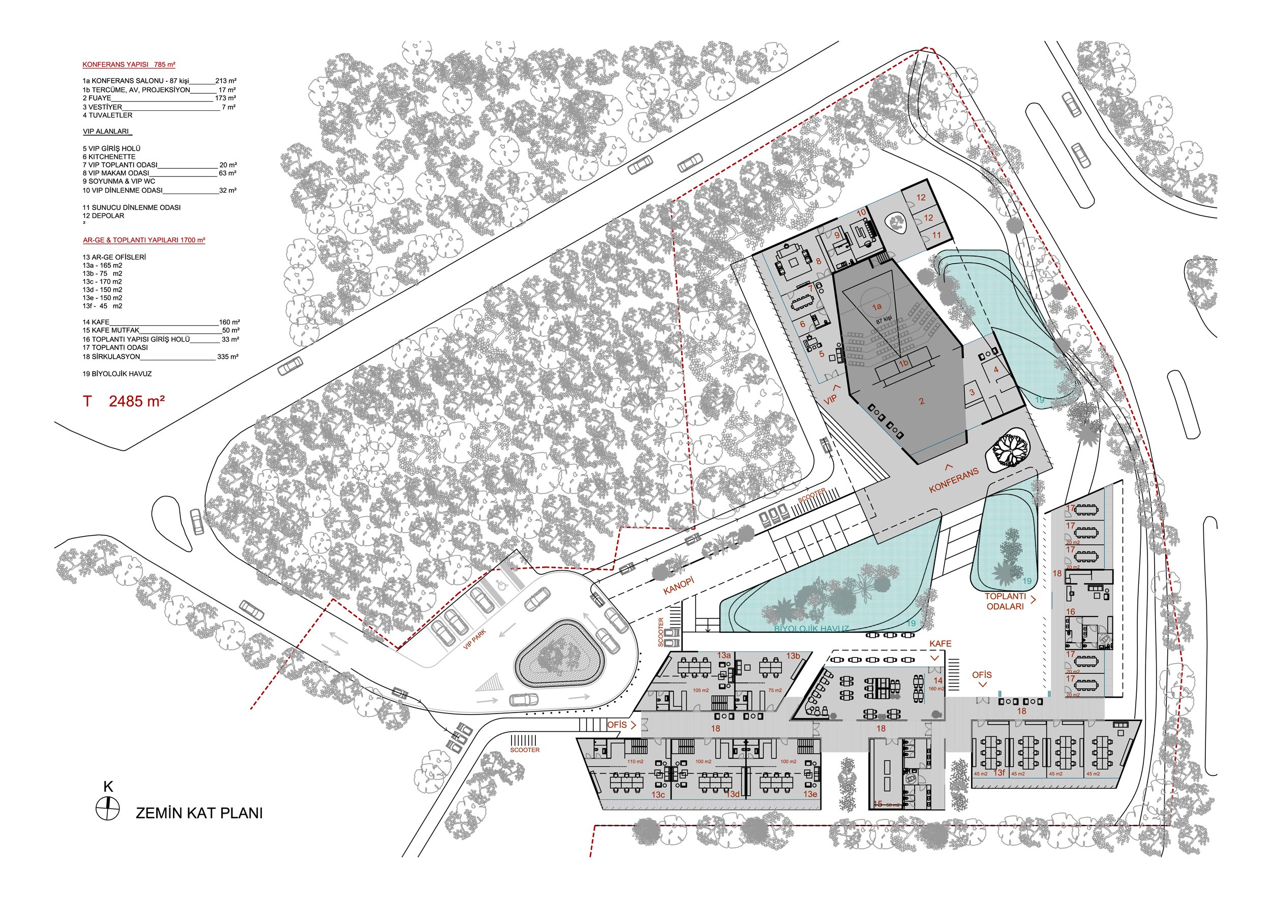
TUBITAK_EkYapi
Proje Yeri: Gebze, Kocaeli (İzmit)
Proje Ofisi: Emre Çetinel Mimarlık
Proje Tipi: Ar-Ge Binası
Proje Tipi Grubu: Ofis
Tasarım Ekibi: Emre Çetinel
Mimari Proje Ekibi: Emre Kocataş, Emre Çetinel , Aygen Taşkıran
Danışman: Sod Mimarlık
Uygulama Projesi: Gen Mimari Tasarım
Arsa Alanı: 9300 m²
Toplam İnşaat Alanı: 2500 m²