33/35
Paylaş
Resmi Orjinal Boyutunda Göster
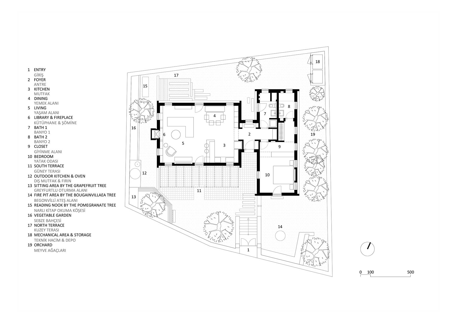
R1 Evi
Project Location: Muğla, Datça
Project Office: ZESA Architecture
Project Type: Single House
Proje Tipi Grubu: Konut
Tasarım Ekibi: Zeynep Şankaynağı, Ayça Taylan
Construction End Date: 2022