2/19
Paylaş
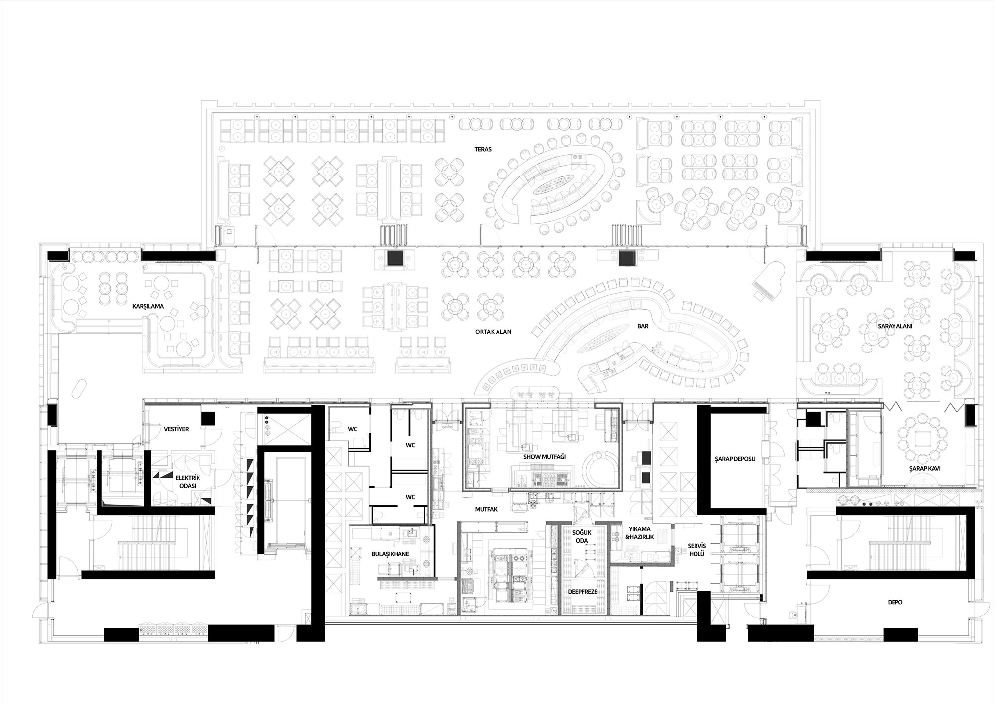
Resmi Orjinal Boyutunda Göster
Biz İstanbul
Proje Yeri: İstanbul
Proje Ofisi: Tabanlıoğlu Mimarlık
Tasarım Ekibi: Murat Tabanlıoğlu, Melkan Gürsel
Mimari Proje Ekibi: Salih Yılgörür, Ahmet Çorapçıoğlu, Can Turan, Harun Şeker, Ebru Okşaksin, Ayşen Neslişah Çakmakkaya, Ömer Kesgin, Aybike Okumuş
İşveren: Doğuş Grup
Ana Yüklenici: MOB A.Ş.
İç Mekan Projesi: Tabanlıoğlu Mimarlık
Proje Yöneticisi: Serdar Makinacı
Konsept Tasarımı: Tabanlıoğlu Mimarlık
Aydınlatma Projesi: Line ld
Grafik Tasarım: Emre Senan
Mekanik Projesi: Enmar Proje Mühendislik
Elektrik Projesi: Enmar Proje Mühendislik
Tesisat Projesi: Enmar Proje Mühendislik
Akustik Projesi: Karakutu Akustik
Akustik Danışmanı: Karakutu Akustik
Yangın Güvenlik Danışmanı: Etik Mühendislik
Maket: Tabanlıoğlu Mimarlık
Fotoğraf: Fevzi Öndü
Mimari Mesleki Kontrollük: Tabanlıoğlu Mimarlık
Şantiye Yöneticisi: MOB A.Ş.
Proje Başlangıç Yılı: 2022
Proje Bitiş Yılı: 2022
İnşaat Başlangıç Yılı: 2022
İnşaat Bitiş Yılı: 2023
Arsa Alanı: 30,508 m²
Toplam İnşaat Alanı: 1160 m2