1/64
Paylaş
Resmi Orjinal Boyutunda Göster
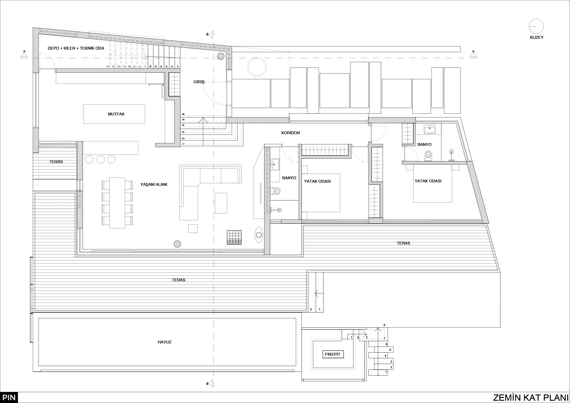
Çambeleni Evi
Project Location: Muğla, Ula
Project Office: PIN Architects
Project Type: Single House
Proje Tipi Grubu: Konut
Architectural Project Team: Ekin Arslan Bahçeci, Salih Küçüktuna, Fikret Sungay
Ana Yüklenici: Evv Yapı Üretim Hizmetleri
Concept Design: PIN Architects
Construction Drawings: PIN Architects
Structural Project: Ümit Özkan
Electrical Project: Aziz Özkan
Plumbing Project: Tamer Hafızoğlu
Project Start Date: 2019
Project End Date: 2020
Construction Start Date: 2020
Construction End Date: 2023
Building Plot Area: 1589 m²
Total Construction Area: 355.68 m²