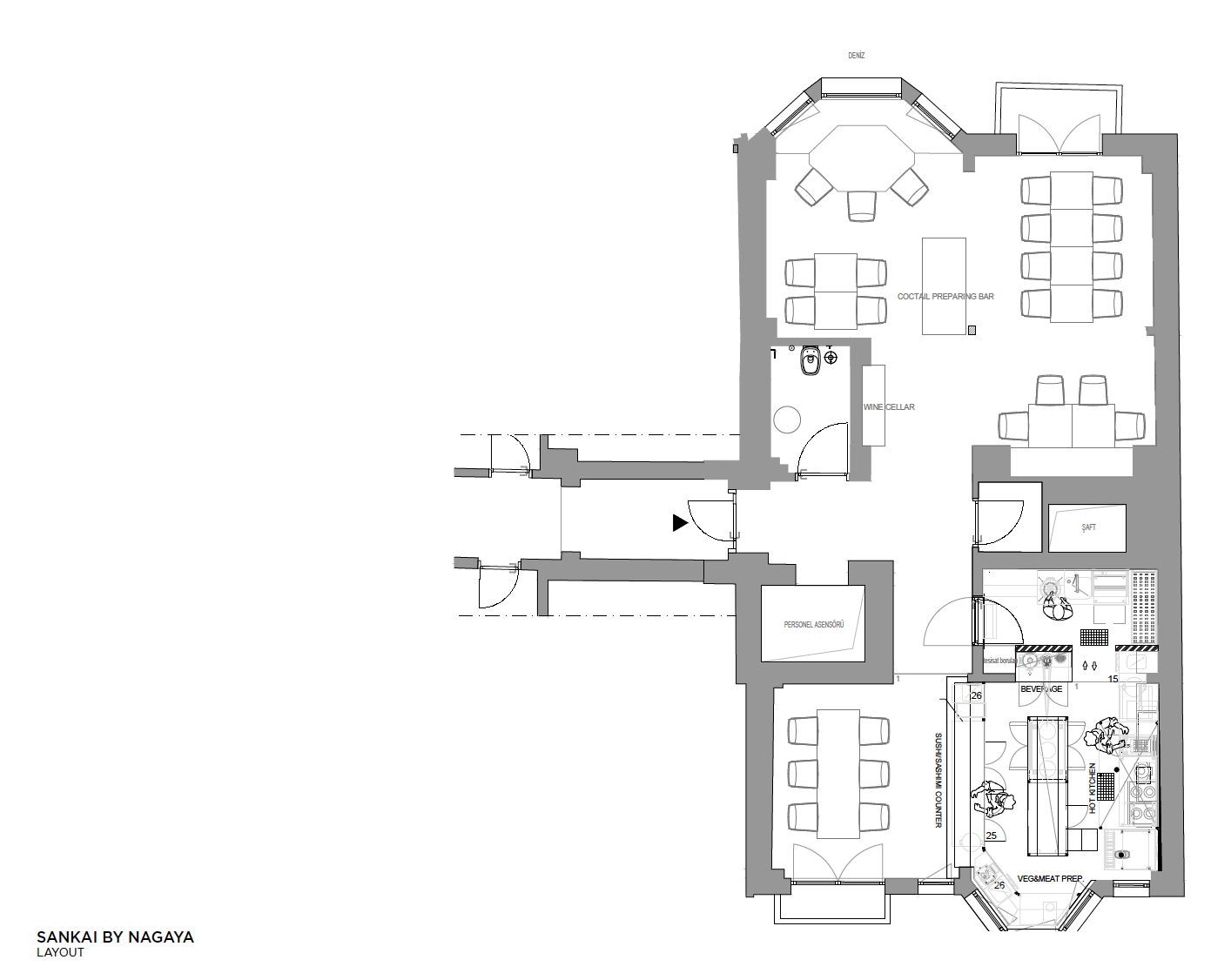
SANKAI_PLAN.png
15/15
Paylaş
Resmi Orjinal Boyutunda Göster
Sankai
Project Location: Bebek
Project Office: GEO_ID
Project Type: Restaurant / Café / Bar
Tasarım Ekibi: Mahmut Anlar, Tuğçe Rizeli Bilgi, Sinan Sipahioğlu, Uğur Aldemir
Employer: Depot Konaklama Hizmetleri A.Ş.
Ana Yüklenici: Depot Konaklama Hizmetleri A.Ş.
Photography: İbrahim Özbunar
Project Start Date: 2022
Project End Date: 2023
Construction Start Date: 2022
Construction End Date: 2023
Building Plot Area: 109m2
Total Construction Area: 100m²