18/20
Paylaş
Resmi Orjinal Boyutunda Göster
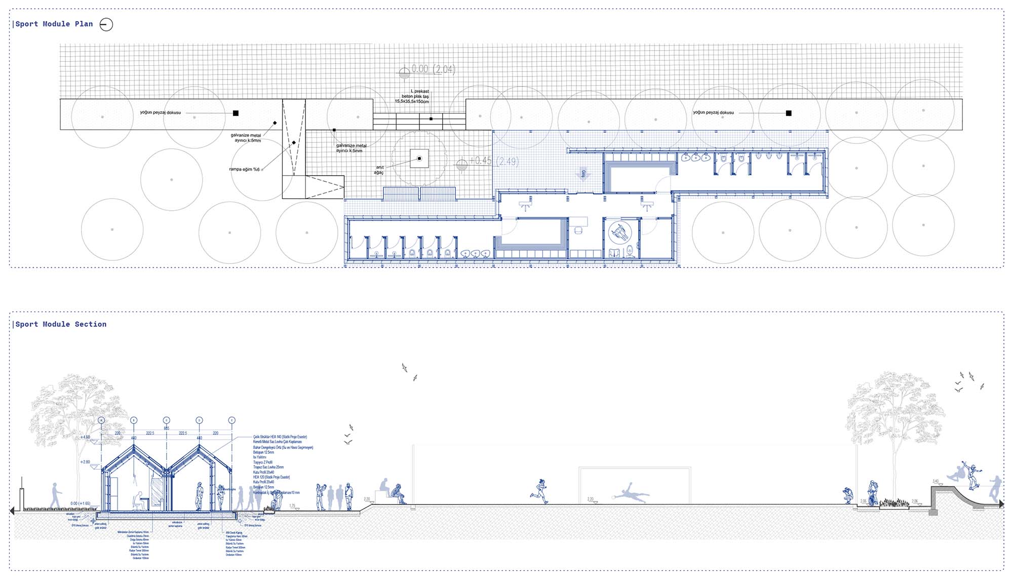
Haliç Köprüaltı Spor Odağı ve Kıyı Bağlantısı
Project Location: Haliç
Project Office: Banu Garip
Tasarım Ekibi: Ervin Garip, Banu Garip
Architectural Project Team: Banu Garip, Fatma Karakaya, Salih Gül, Samet Küçükbay
Employer: İBB Park Bahçe ve Yeşil Alanlar Daire Başkanlığı
Ana Yüklenici: İBB Park Bahçe ve Yeşil Alanlar Daire Başkanlığı
Peyzaj Mimarlığı: Merve Yavuz
Projcet Manager: Ervin Garip
Construction Drawings: Merve Yavuz, Banu Garip
Structural Project: Burhan Kaplan
Mechanical Project: Slm Mühendislik
Electrical Project: Slm Mühendislik
Photography: Egemen Karakaya
Project Start Date: 2020
Project End Date: 2023
Construction Start Date: 2021
Construction End Date: 2023
Building Plot Area: 30 000m2
Total Construction Area: 30 000m2