20/25
Paylaş
Resmi Orjinal Boyutunda Göster
Zenel
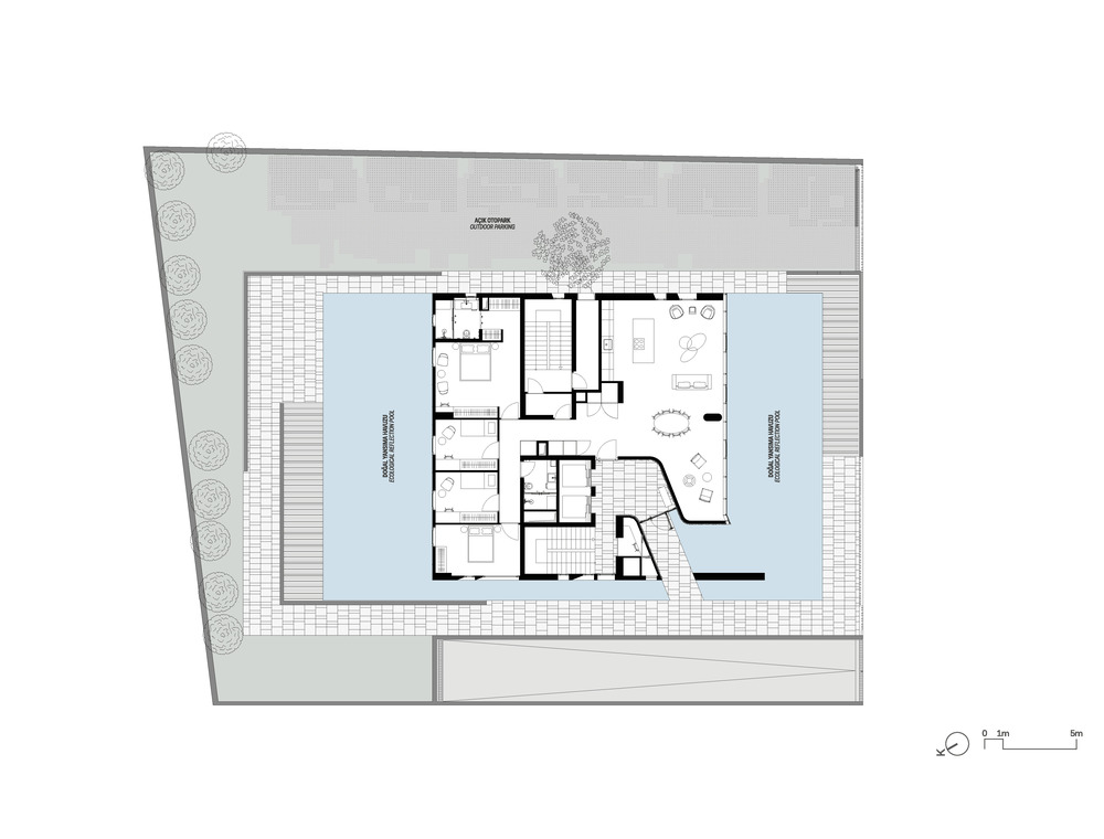
Proje Yeri: İstanbul
Proje Ofisi: Aytaç Architects
Proje Tipi: Apartman
Proje Tipi Grubu: Konut
Tasarım Ekibi: Alper Aytaç
İşveren: Zenel Family
Ana Yüklenici: Aytaç İnşaat
Peyzaj Mimarlığı: Gülşen Aytaç
Statik Projesi: İnan Mühendislik
Mekanik Projesi: Tanrıöver Mühendislik
Arsa Alanı: 1138 m2
Toplam İnşaat Alanı: 3987 m2