40/44
Paylaş
Resmi Orjinal Boyutunda Göster
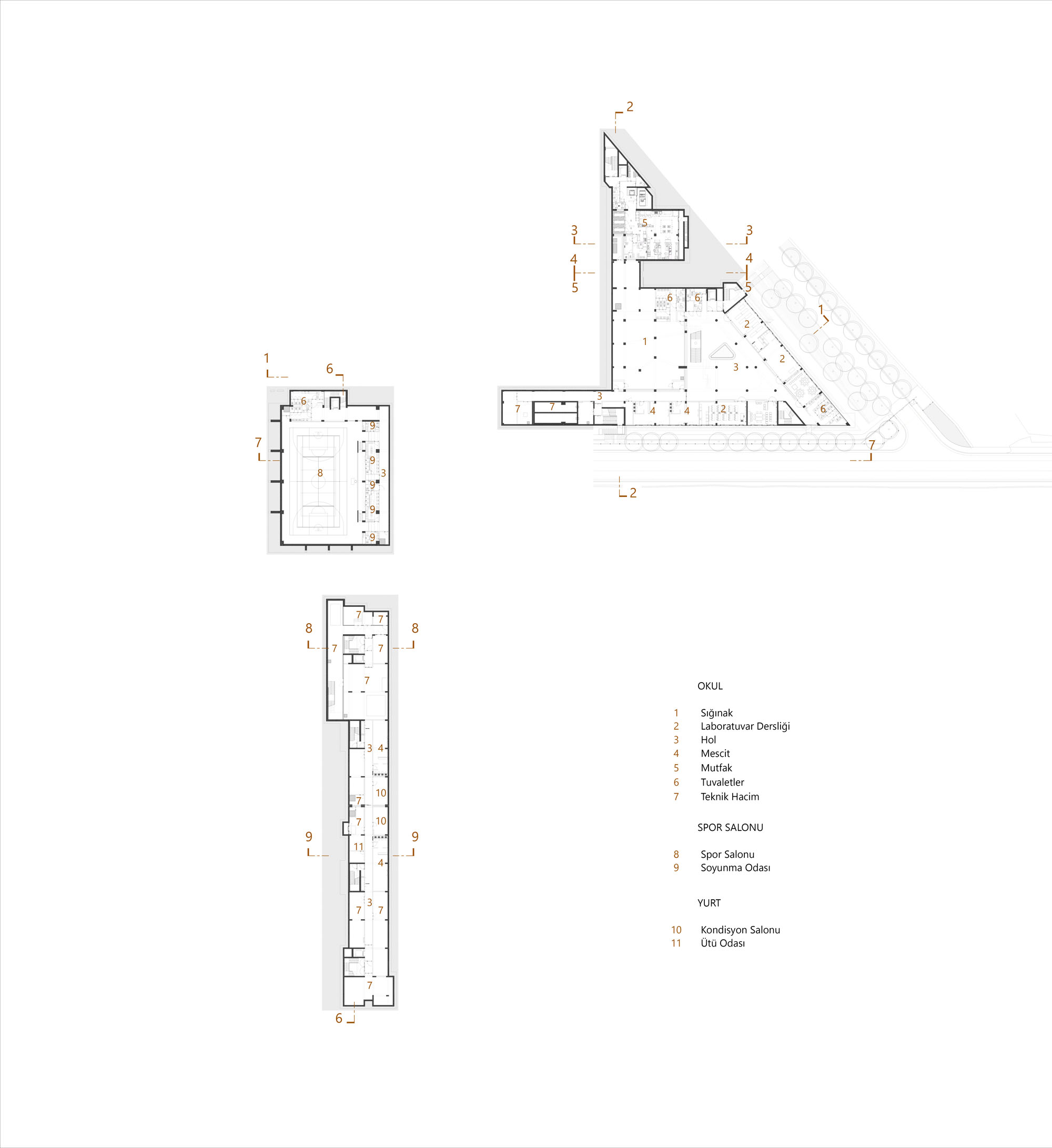
Ankara Erman Ilıcak Fen Lisesi
Project Location: Ankara
Project Office: CBN Mimarlık
Project Type: High School
Proje Tipi Grubu: Eğitim Yapısı
Tasarım Ekibi: Ebru Can Bilhan, Kenan Bilhan
Architectural Project Team: Muhammet Onur Salur, Kübra Demirel, Aybüke Kır, Furkan Güler, Hande Güner
Employer: Rönesans Eğitim Vakfı
Consultant: İlter Uluğ, Murat Karakaşlı, Diler Özdemir, Cemre Teomete, Cengiz Çalık
Ana Yüklenici: Gülşah Kösa, REC Uluslararası
Peyzaj Mimarlığı: ADD Design Studio, Alper Tüfekçioğlu
Photography: Emre Şenokur, Aylin Akın, Akın Andırın
Construction Site Manager: Niyazi Arslan
Project Start Date: 2021
Project End Date: 2021
Construction Start Date: 2021
Construction End Date: 2022
Building Plot Area: 19.900 m2
Total Construction Area: 16.297 m2