13/17
Paylaş
Resmi Orjinal Boyutunda Göster
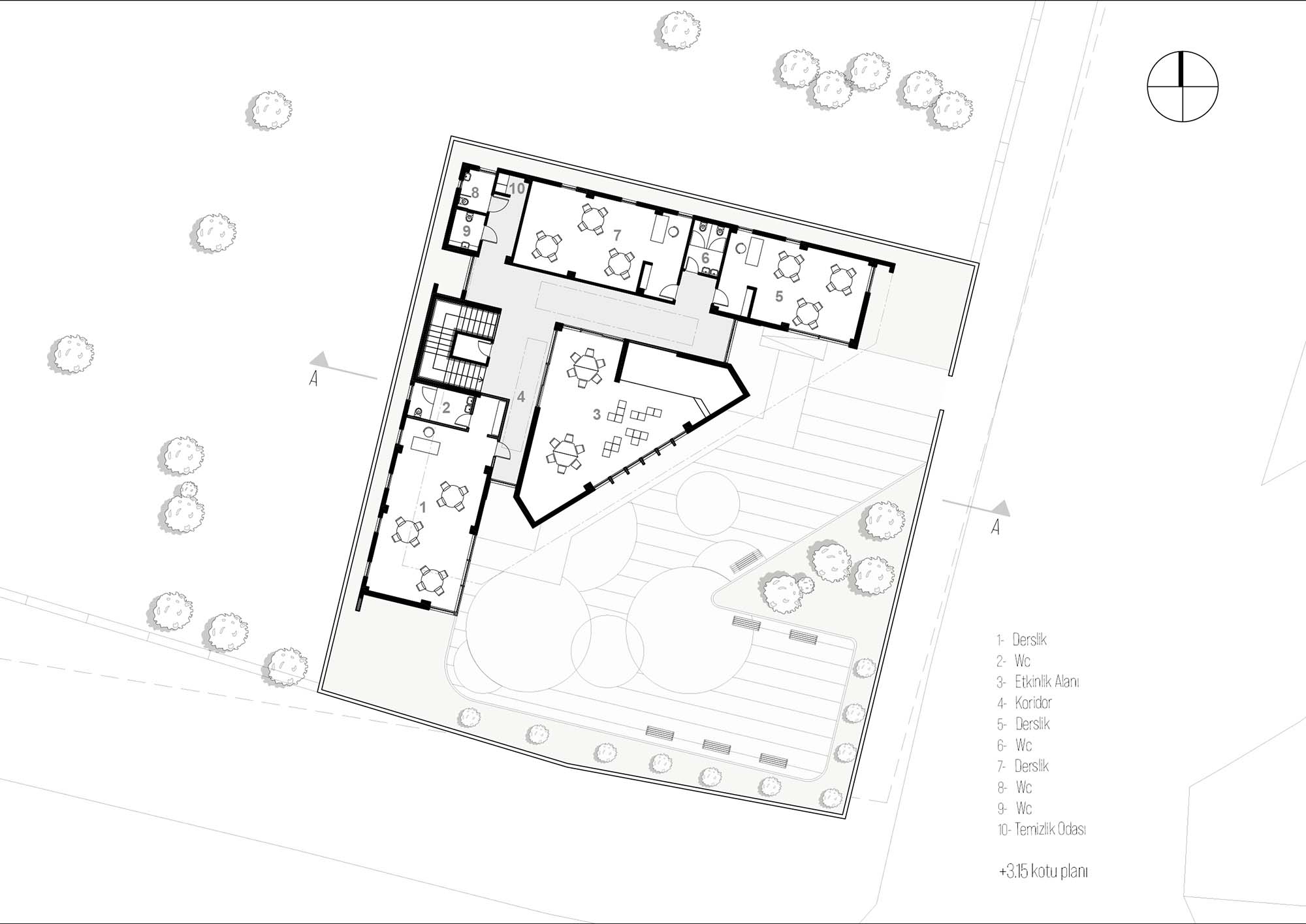
Kazım Karabekir Kreşi
Proje Yeri: Adana
Proje Ofisi: Eren Tümer Mimarlık Ofisi [ETMO]
Proje Tipi: Anaokulu / Kreş
Proje Tipi Grubu: Eğitim Yapısı
Tasarım Ekibi: Eren Tümer, Ece Sultan Karacık, Sena Biber, Şengül Şimşek, İlay Bilge Şen
İşveren: Yüreğir Belediyesi
Peyzaj Mimarlığı: Leyla Akyol, LA Proje
Statik Projesi: Tuna Sağol
Mekanik Projesi: Mahmut Kaya, KPD Mühendislik & Müşavirlik
Elektrik Projesi: Selçuk Özdoğan
Fotoğraf: İlay Bilge Şen