34/41
Paylaş
Resmi Orjinal Boyutunda Göster
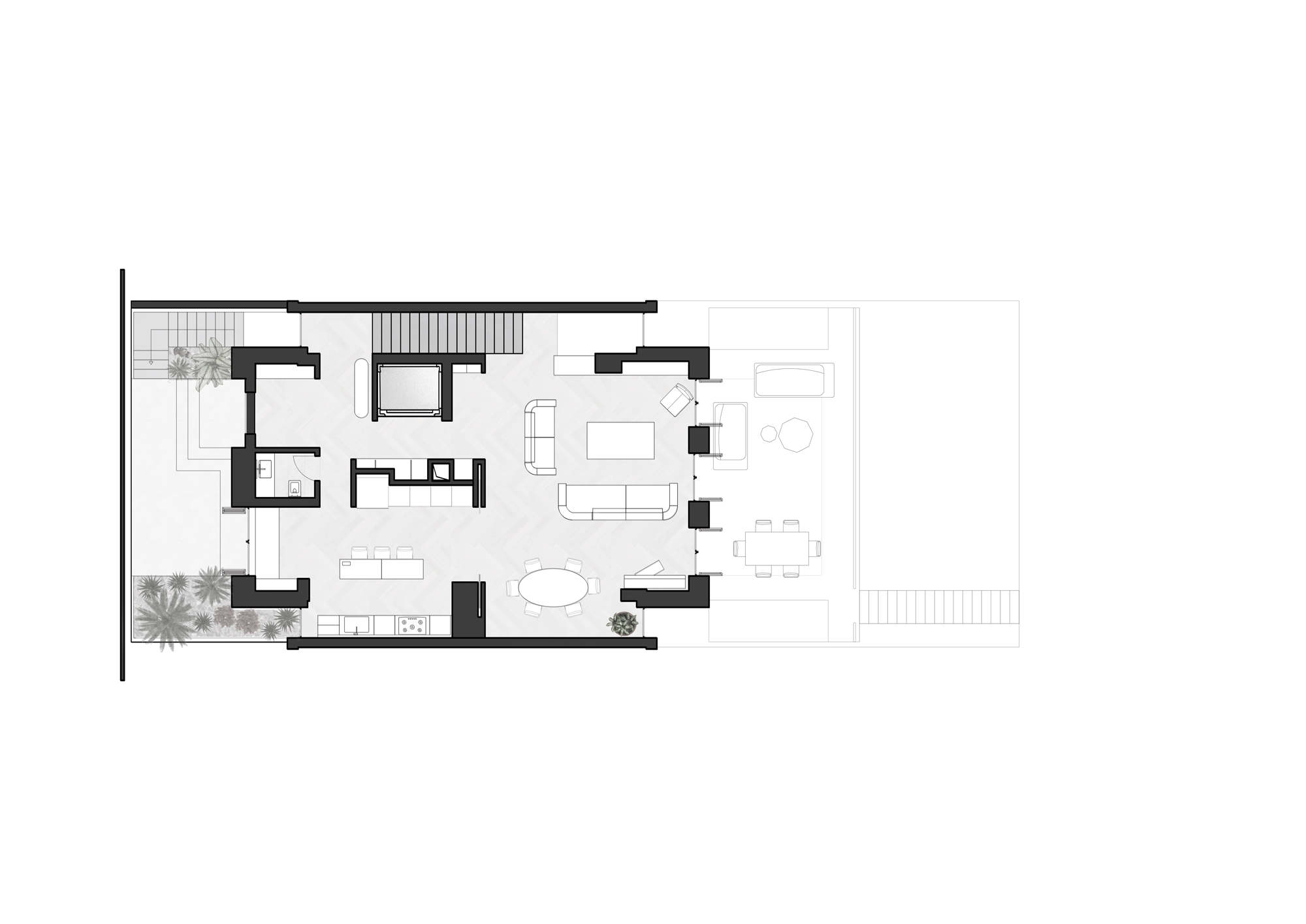
B Akatlar Evi
Proje Yeri: Akatlar, İstanbul
Proje Ofisi: Normal.
Proje Tipi: Tek Ev / Villa
Proje Tipi Grubu: Konut
Tasarım Ekibi: Enrico Şansal
İşveren: B Ailesi
Yardımcı: İzem Akıllı, Rumeysa Yüksel, Zeynep Timur
Ana Yüklenici: Form Yapı
İç Mekan Projesi: Normal.
Proje Yöneticisi: Enrico Şansal
Konsept Tasarımı: Normal.
Uygulama Projesi: Çok Normal Proje Tasarım uygulama
Cephe Tasarımı: Normal.
Aydınlatma Projesi: Normal.
Statik Projesi: Form Yapı
Mekanik Projesi: Çok Normal Proje Tasarım uygulama
Elektrik Projesi: Çok Normal Proje Tasarım uygulama
Tesisat Projesi: Çok Normal Proje Tasarım uygulama
Fotoğraf: Egemen Karakaya
Mimari Mesleki Kontrollük: Normal.
Şantiye Yöneticisi: Emre Bulut
Proje Başlangıç Yılı: 2022, 2024
İnşaat Başlangıç Yılı: 2023
İnşaat Bitiş Yılı: 2024
Arsa Alanı: 350