13/16
Paylaş
Resmi Orjinal Boyutunda Göster
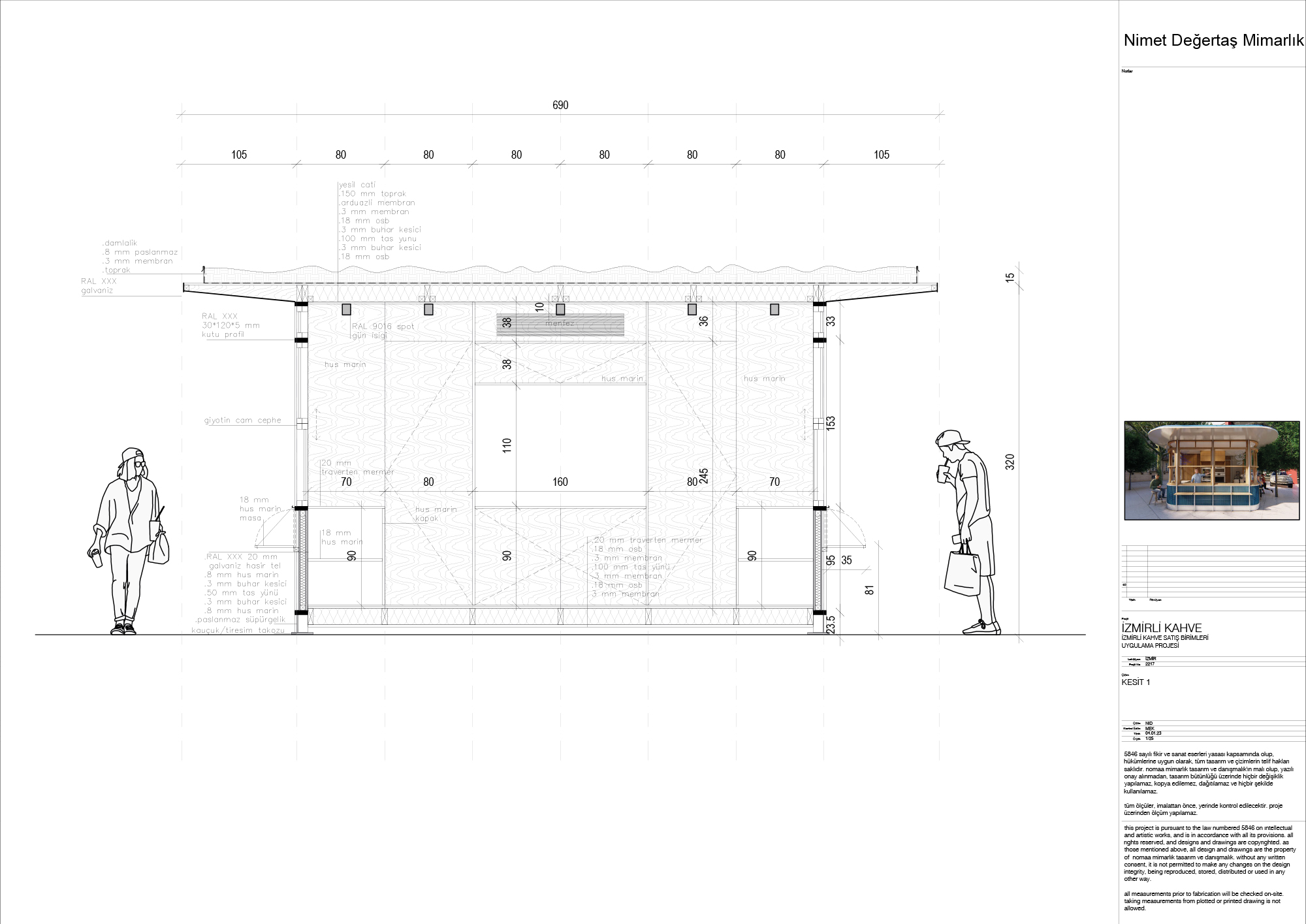
İzmirli
Proje Yeri: İzmir
Proje Ofisi: NOMAA.Studio
Tasarım Ekibi: Melike Kavalalı, Nimet Değertaş
Ana Yüklenici: NOMAA.Studio
Konsept Tasarımı: NOMAA.Studio
Uygulama Projesi: NOMAA.Studio
Fotoğraf: Zeren + Mehmet Yasa Photography
Proje Başlangıç Yılı: 2022
İnşaat Bitiş Yılı: 2024