5/9
Paylaş
Resmi Orjinal Boyutunda Göster
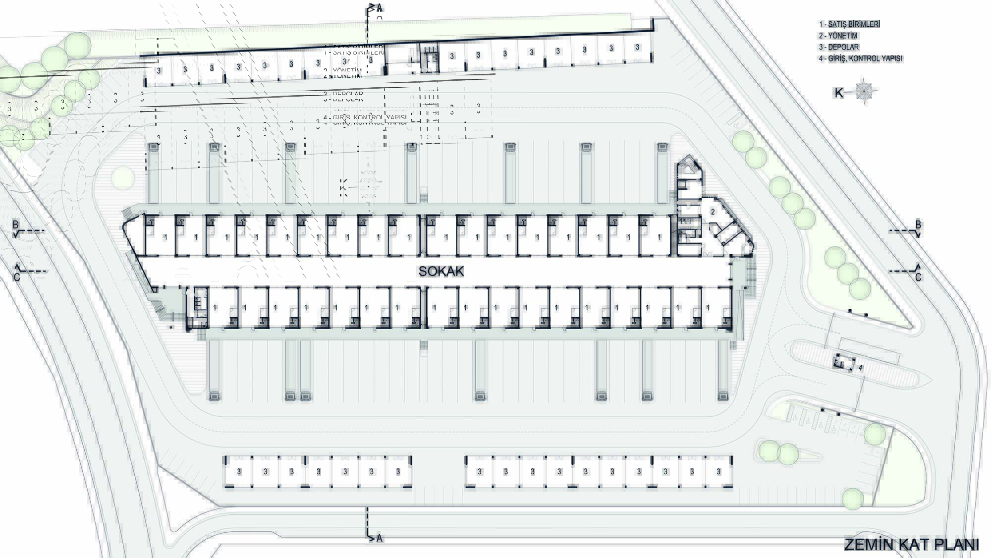
Gebze Sebze Hali
Proje Yeri: Gebze, Kocaeli (İzmit)
Proje Ofisi: ALKA PROJE