32/49
Paylaş
Resmi Orjinal Boyutunda Göster
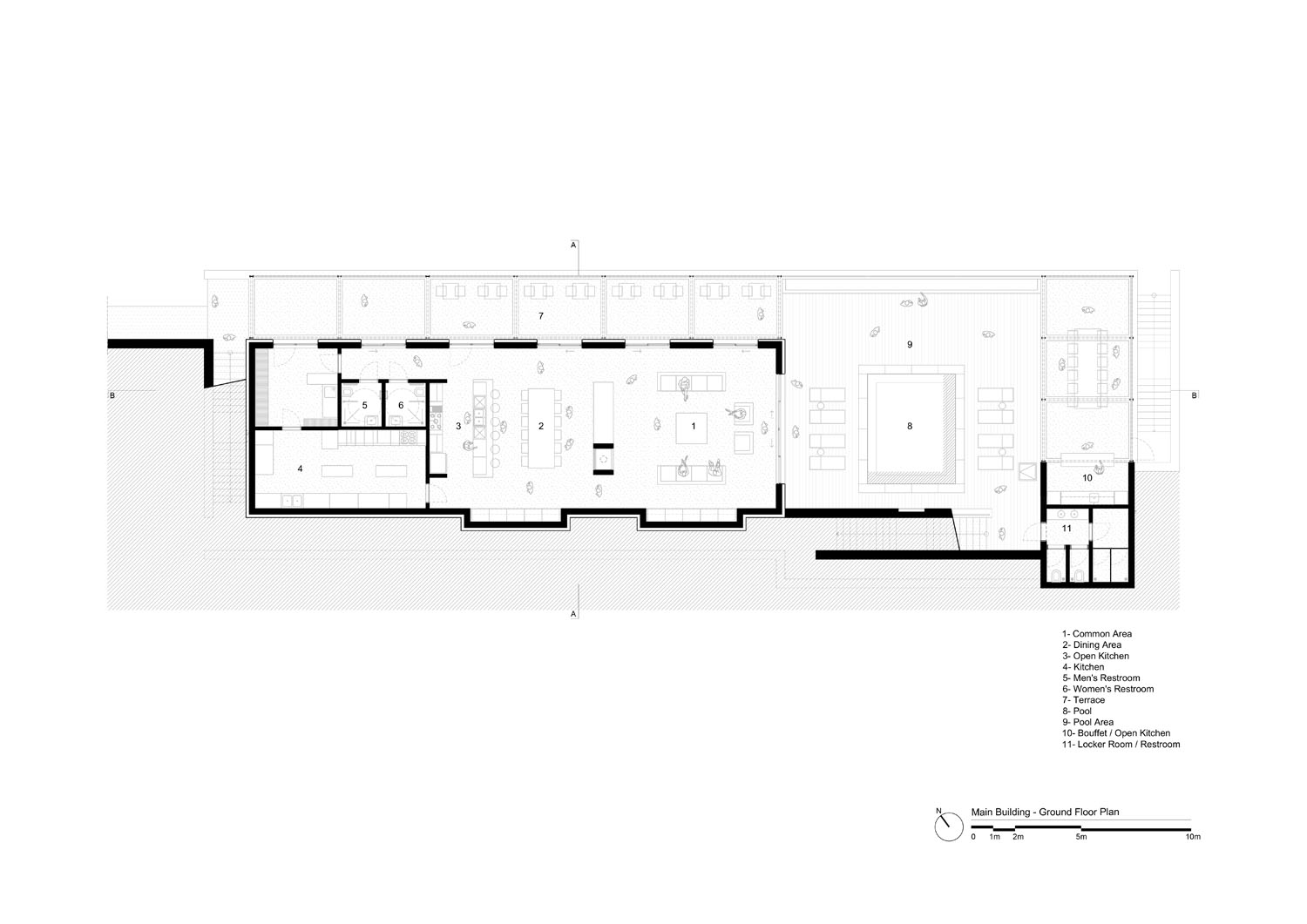
Arazi
Proje Yeri: Çanakkale
Proje Ofisi: Per Se Mimarlık
Proje Tipi Grubu: Konaklama