34/43
Paylaş
Resmi Orjinal Boyutunda Göster
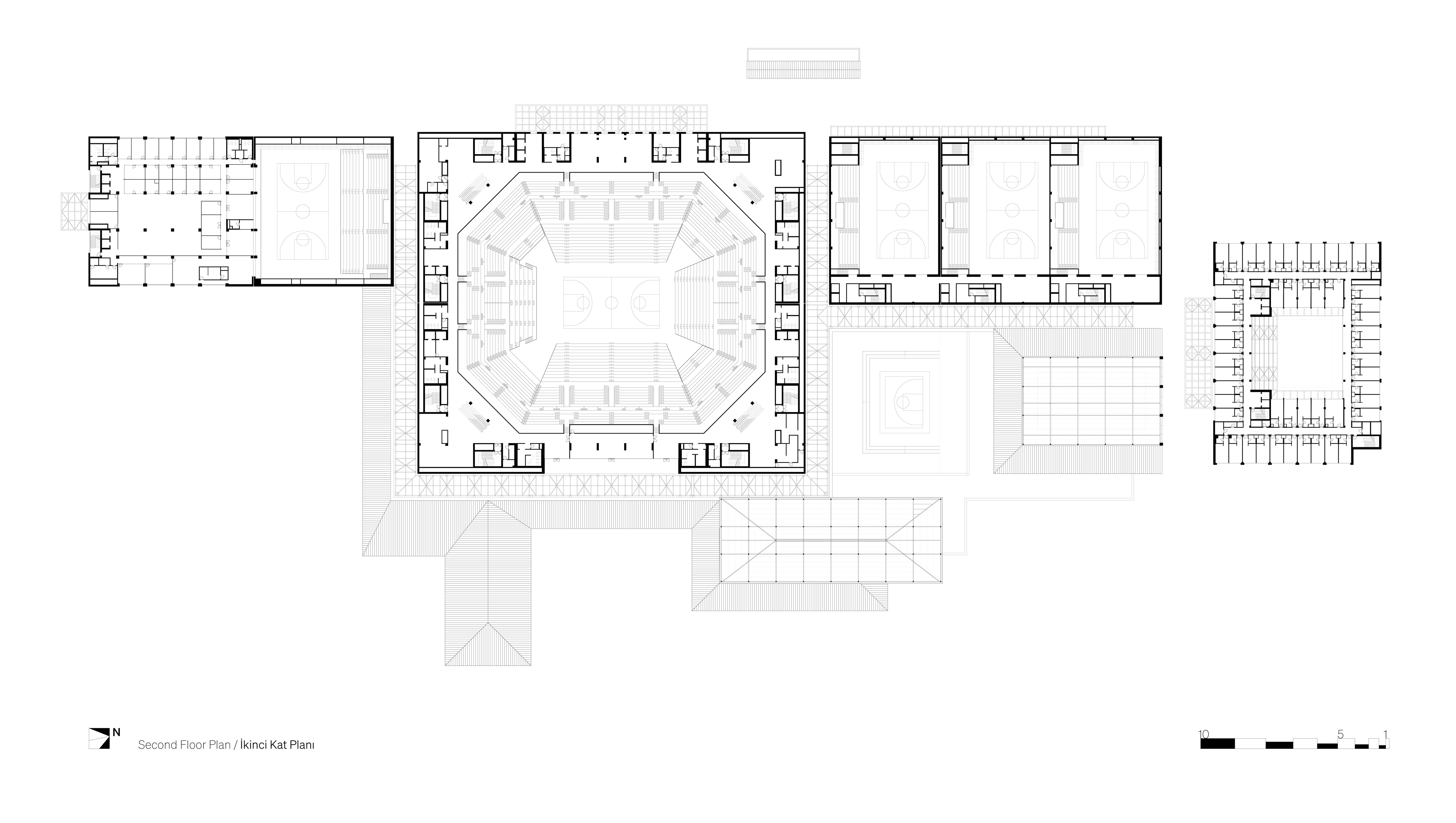
Basketbol Gelişim Merkezi
Proje Yeri: Zeytinburnu
Proje Ofisi: Teğet Mimarlık
Tasarım Ekibi: Ertuğ Uçar, Mehmet Kütükçüoğlu, Ece Ünübol, Ethem Aybar, Hande Ciğerli, Tuberk Altuntaş, Onur Akın, Seda Kumru, Banu Aktaş, Deniz Dilan Kara, Nazlı Ünsal, Beyza Paksoy, Mehmet Kaymaz, Yıldırım Erbaz, Mehmet Erdönmez, Beyza Günaydın
Mimari Proje Ekibi: Mehmet Kütükçüoğlu, Ertuğ Uçar, Ece Ünübol, Ethem Aybar, Hande Ciğerli, Tuberk Altuntaş, Onur Akın, Seda Kumru, Banu Aktaş, Deniz Dilan Kara, Nazlı Ünsal, Mehmet Kaymaz, Yıldırım Erbaz, Mehmet Erdönmez, Beyza Günaydın, Canan Acar, Rumeysa Tıpırdamaz, Yağız Ateşoğlu, İrem Sümer, Cem Ayyıldız
İşveren: Türkiye Basketbol Federasyonu
Ana Yüklenici: MBD İnşaat
Alt Yüklenici: Konsept Tasarımı
Peyzaj Mimarlığı: caps.office
Proje Yöneticisi: Ece Ünübol, Tuberk Altuntaş, Hande Ciğerli
Konsept Tasarımı: Teğet Mimarlık
Uygulama Projesi: Teğet Mimarlık
Aydınlatma Projesi: Ukon
Grafik Tasarım: Pompaa
Statik Projesi: Ural Mühendislik, Yurdakul Mühendislik
Altyapı Projesi: Diyap Mühendislik
Akustik Danışmanı: Mezzo Studio
Yangın Güvenlik Danışmanı: Ethos Foods
Fotoğraf: Egemen Karakaya
Proje Başlangıç Yılı: 2017, 2021
İnşaat Başlangıç Yılı: 2021
İnşaat Bitiş Yılı: 2024
Arsa Alanı: 68.800 m2
Toplam İnşaat Alanı: 150.000 m2