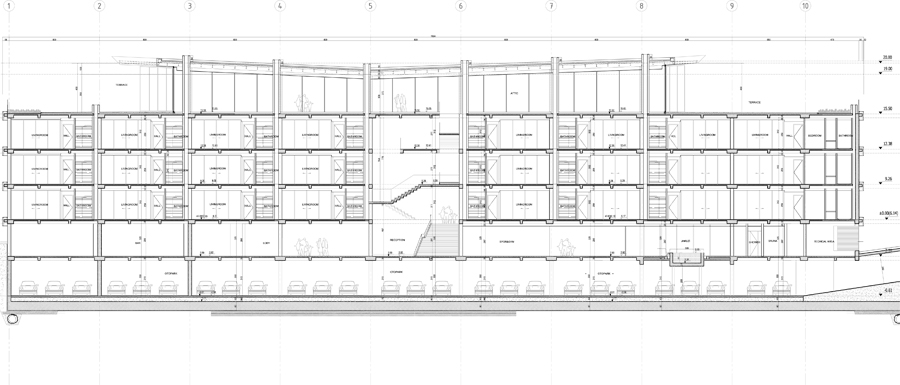
Kesit
41/41
Paylaş
Resmi Orjinal Boyutunda Göster
MiCosta Boyalık Residences
Fotoğraflar: Özgür Arı
Proje Yeri: İzmir, Çeşme
Proje Ofisi: Uras X Dilekci Mimarlık
Proje Tipi: Konut Sitesi / Grubu
Proje Tipi Grubu: Konut
Tasarım Ekibi: Durmuş Dilekci, Emir Uras
İşveren: SUV Yapı
Yardımcı: Aylin Ayvaz, Evren Alpay, Zeynep Ekinci, Salih Küçüktuna
Ana Yüklenici: SUV Yapı
Peyzaj Mimarlığı: Nesil Peyzaj
İç Mekan Projesi: Uras X Dilekci Mimarlık
Proje Yöneticisi: Aylin Ayvaz
Aydınlatma Projesi: Uras X Dilekci Mimarlık
Statik Projesi: NU Mühendislik
Mekanik Projesi: Nükleer Mühendislik
Elektrik Projesi: Nükleer Mühendislik
Tesisat Projesi: Nükleer Mühendislik
Akustik Danışmanı: Uras X Dilekci Mimarlık
Proje Başlangıç Yılı: Aralık 2010
Proje Bitiş Yılı: 2011
İnşaat Başlangıç Yılı: 2011
İnşaat Bitiş Yılı: 2013
Arsa Alanı: 7300 m²
Toplam İnşaat Alanı: 10,085 m2