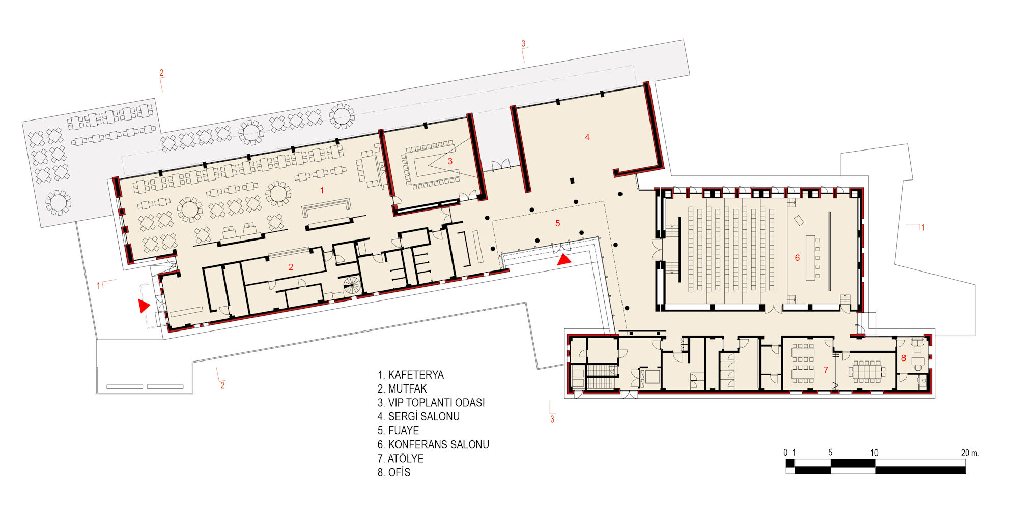
Kültür Merkezi Planı
11/15
Paylaş
Resmi Orjinal Boyutunda Göster
Vehbi Koç Vakfı Kültür ve Sanat Merkezi
Project Location: Gölcük, Kocaeli (İzmit)
Project Office: TeCe Mimarlık
Project Type: Cultural Center
Proje Tipi Grubu: Kültür
Tasarım Ekibi: Tülin Hadi, Cem İlhan, Aydoğan Özsoy, Keriman Afyonlu
Employer: Vehbi Koç Vakfı
Ana Yüklenici: ARK İnşaat
Peyzaj Mimarlığı: TeCe Mimarlık
Interior Architecture: TeCe Mimarlık
Lighting Project: ANEL
Structural Project: Arup
Mechanical Project: Atakar Mühendislik
Electrical Project: ANEL
Project Start Date: 2009
Project End Date: 2010
Construction Start Date: 2010
Construction End Date: 2011
Building Plot Area: 27.000 m2
Total Construction Area: 4.500 m2