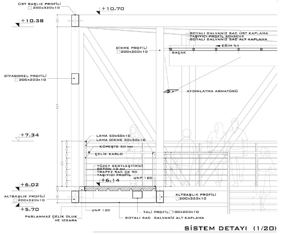
Sistem Detayı
6/7
Paylaş
Resmi Orjinal Boyutunda Göster
Yaya Üst Geçitleri Fikir Projesi Yarışması (Zeytinburnu D100 Karayolu, Topkapı Mevki), 3. Ödül
Project Location: İstanbul
Project Office: BBMD Bingöl Barka Mimarlık ve Danışmanlık
Project Type: Bridge
Proje Tipi Grubu: 3. Ödül
Tasarım Ekibi: Özgür Bingöl, İlke Barka, Emre Savga, Tuba Bilgiç, A. Günkut Barka, Ebru Firidin Özgür