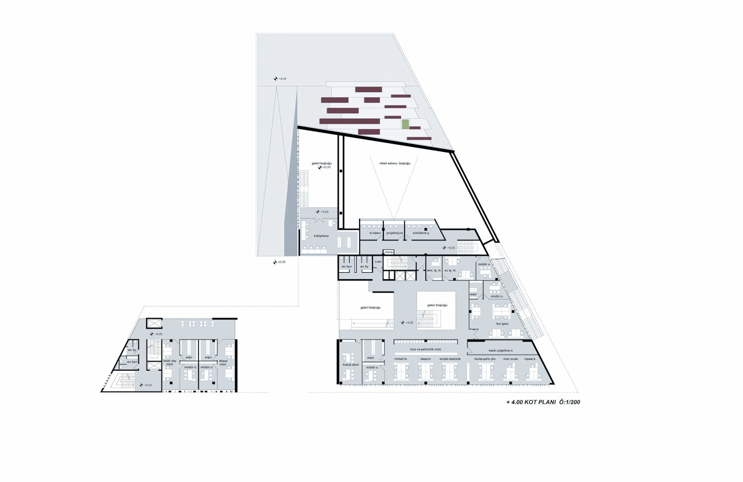
+04.00 Kotu Planı
9/20
Paylaş
Resmi Orjinal Boyutunda Göster
Kadirli Belediyesi Hizmet Binası ve Kültür Merkezi Ulusal Mimari Proje Yarışması, 1. Ödül
Proje Yeri: Adana
Proje Ofisi: İki Artı Bir Mimarlık
Proje Tipi: Belediye Hizmet Binası
Proje Tipi Grubu: 1. Ödül
Tasarım Ekibi: Deniz Dokgöz, Ferhat Hacıalibeyoğlu, Orhan Ersan, Turgut Şakiroğlu