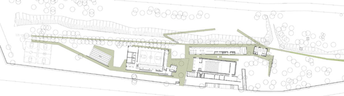
Plan
10/10
Paylaş
Resmi Orjinal Boyutunda Göster
Vehbi Koç Vakfı Gölcük Eğitim ve Kültür Merkezi Davetli Mimari Proje Yarışması, 1. Ödül
Proje Yeri: Kocaeli (İzmit)
Proje Ofisi: TeCe Mimarlık
Proje Tipi: Kültür Merkezi
Proje Tipi Grubu: 1. Ödül
Tasarım Ekibi: Cem İlhan, Tülin Hadi
Yardımcı: Keriman Afyonlu, Aydoğan Özsoy