Plan
11/13
Paylaş
Resmi Orjinal Boyutunda Göster
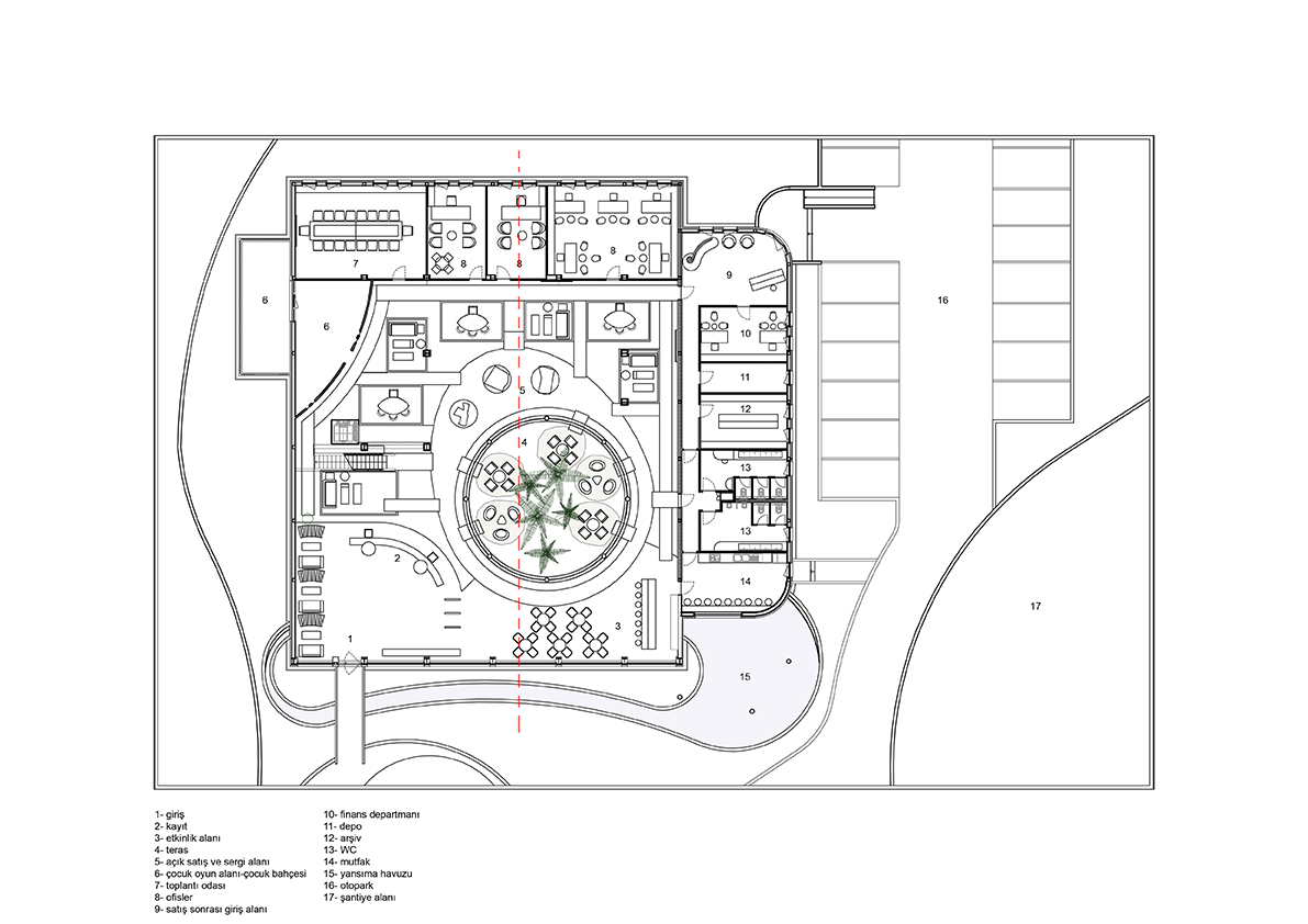
Akasya Acıbadem Galeri
Proje Yeri: İstanbul
Proje Ofisi: Evrenol Architects
Tasarım Ekibi: Alp Evrenol, Tamer Tunbiş, Mehpare Evrenol
İşveren: Saf Gayrimenkul, Saf A.Ş.
Peyzaj Mimarlığı: DS Mimarlık
Statik Projesi: Çelik&Çelik Balkar Müh
Mekanik Projesi: Çilingiroğlu AŞ, Çilingiroğlu A.Ş.
Elektrik Projesi: Cedetaş Mühendislik
Fotoğraf: Sedat Antay
Toplam İnşaat Alanı: 1.710 m²