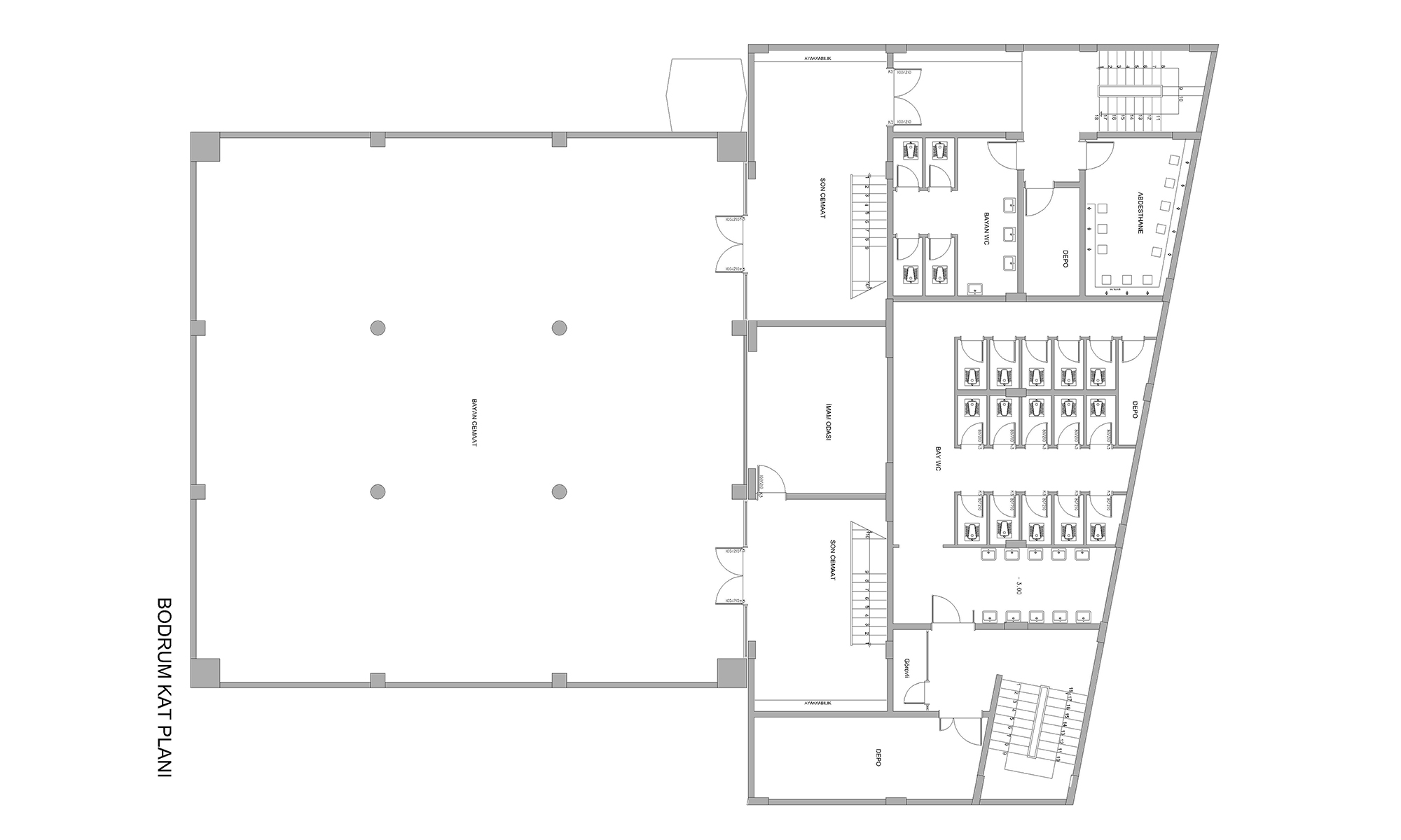
Bodrum Kat Planı
7/10
Paylaş
Resmi Orjinal Boyutunda Göster
Kumru Merkez Cami
Proje Yeri: Kumru, Ordu
Proje Ofisi: Başak Mimarlık
Proje Tipi: Cami / Mescit
Proje Tipi Grubu: Dini
Tasarım Ekibi: Cengiz Şentürk, Taylan Tomrukçu
İşveren: Kumru Cami Yaptırma Derneği
Yardımcı: Hakan Düzen, Olgun Gök, Orhan Ekiz
Statik Projesi: İlke Proje
Mekanik Projesi: Pekşen Mühendislik
Elektrik Projesi: Asılkefeli Elektrik
Proje Başlangıç Yılı: Aralık 2010, Şubat 2011
İnşaat Başlangıç Yılı: 2011
Arsa Alanı: 3200m²
Toplam İnşaat Alanı: 1080m²