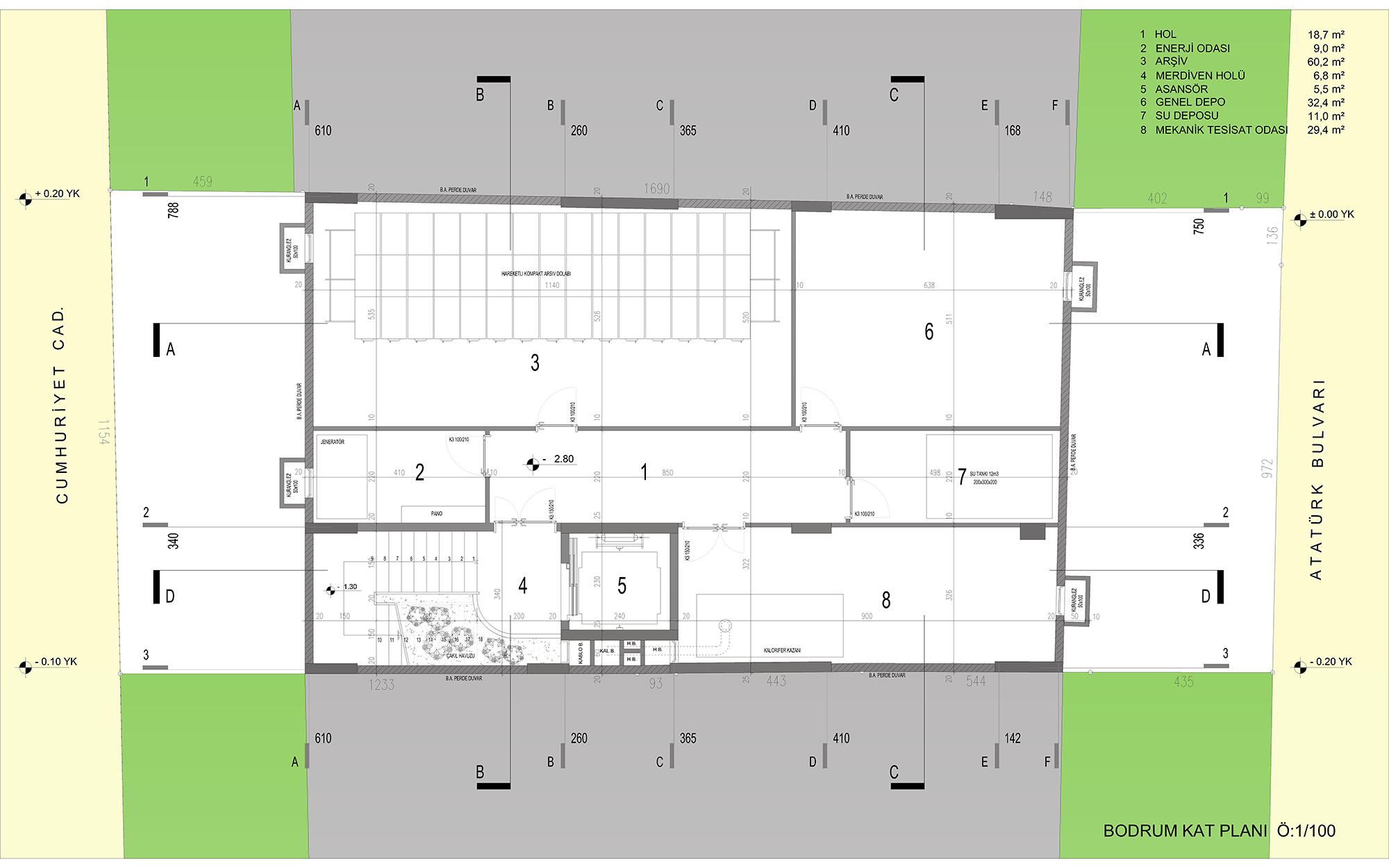
Bodrum Kat Planı
7/18
Paylaş
Resmi Orjinal Boyutunda Göster
Samsun Mimarlar Odası Hizmet Binası Yarışması
Proje Yeri: İlkadım, Samsun
Proje Ofisi: Başak Mimarlık
Proje Tipi: Ofis
Proje Tipi Grubu: Katılımcı
Tasarım Ekibi: Cengiz Şentürk, Taylan Tomrukçu
İşveren: TMMOB Mimarlar Odası Samsun Şubesi
Danışman: İlke Proje
Proje Başlangıç Yılı: Mart 2011
Proje Bitiş Yılı: Haziran 2011
Arsa Alanı: 150m²
Toplam İnşaat Alanı: 1050m²