Planlar-1
32/35
Paylaş
Resmi Orjinal Boyutunda Göster
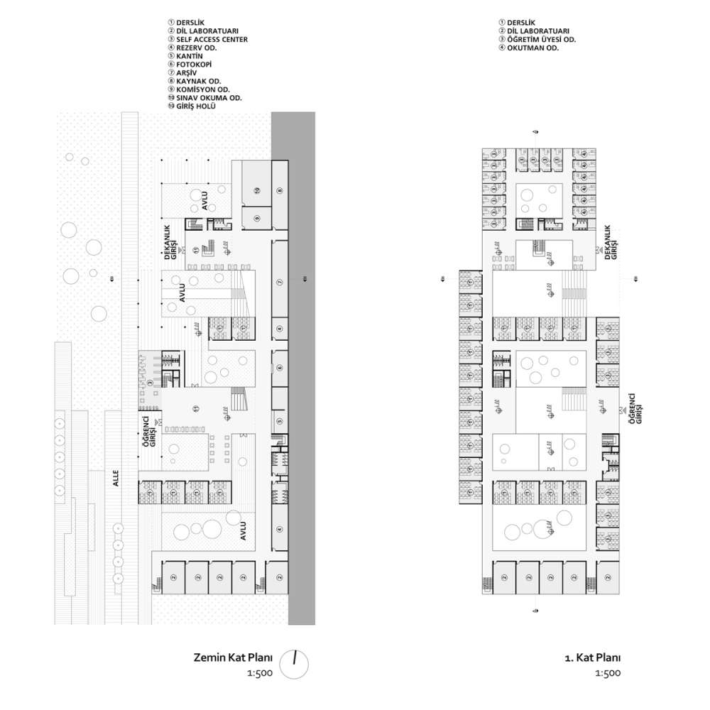
Kayseri Abdullah Gül Üniversitesi Kampüsü Master Planı Davetli Yarışması, 1. Ödül: Alişan Çırakoğlu, Ilgın Avcı
Project Location: Kayseri
Project Type: University Campus
Proje Tipi Grubu: 1. Ödül
Tasarım Ekibi: Alişan Çırakoğlu, Ilgın Avcı