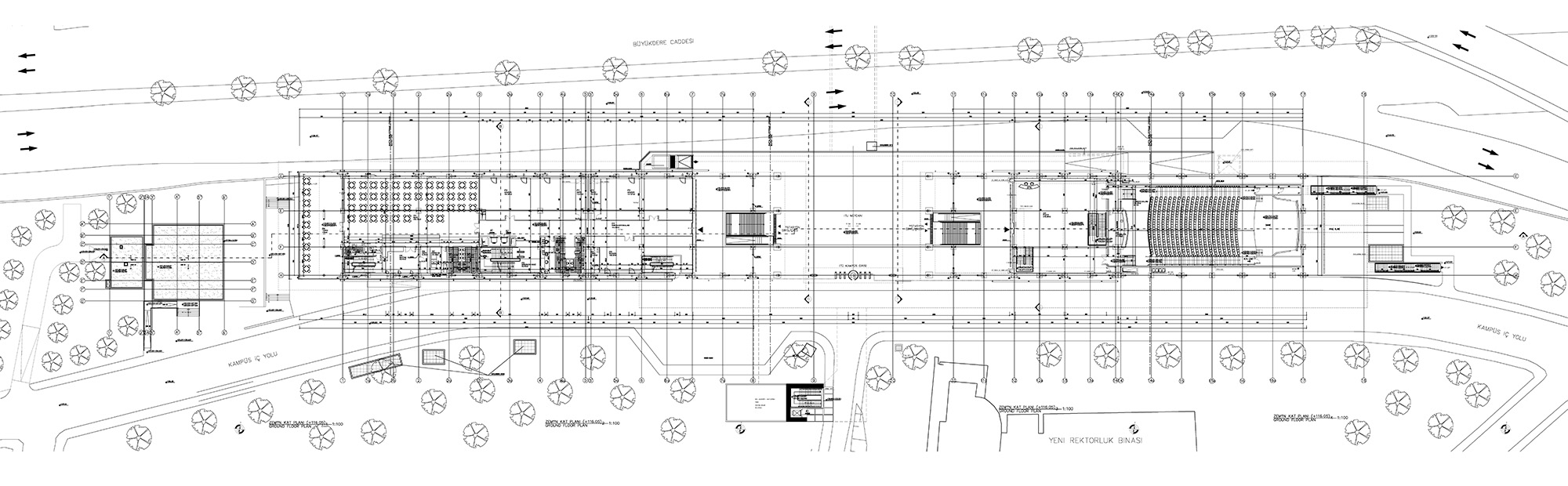
Zemin Kat Planı
1/4
Paylaş
Resmi Orjinal Boyutunda Göster
İTÜ-Ayazağa Metrosu ArGe Binası ve Tesisleri
Project Location: Maslak, İstanbul
Project Office: AU Architects
Project Type: R&D Building
Proje Tipi Grubu: Eğitim
Tasarım Ekibi: Alper Ünlü
Yardımcı: Onur Yücel, Emre Ergün
Structural Project: Selim Çavdar
Mechanical Project: Ethem Özbakır
Electrical Project: Niyazi Poroy
Project Start Date: 2007
Total Construction Area: 10.300m²