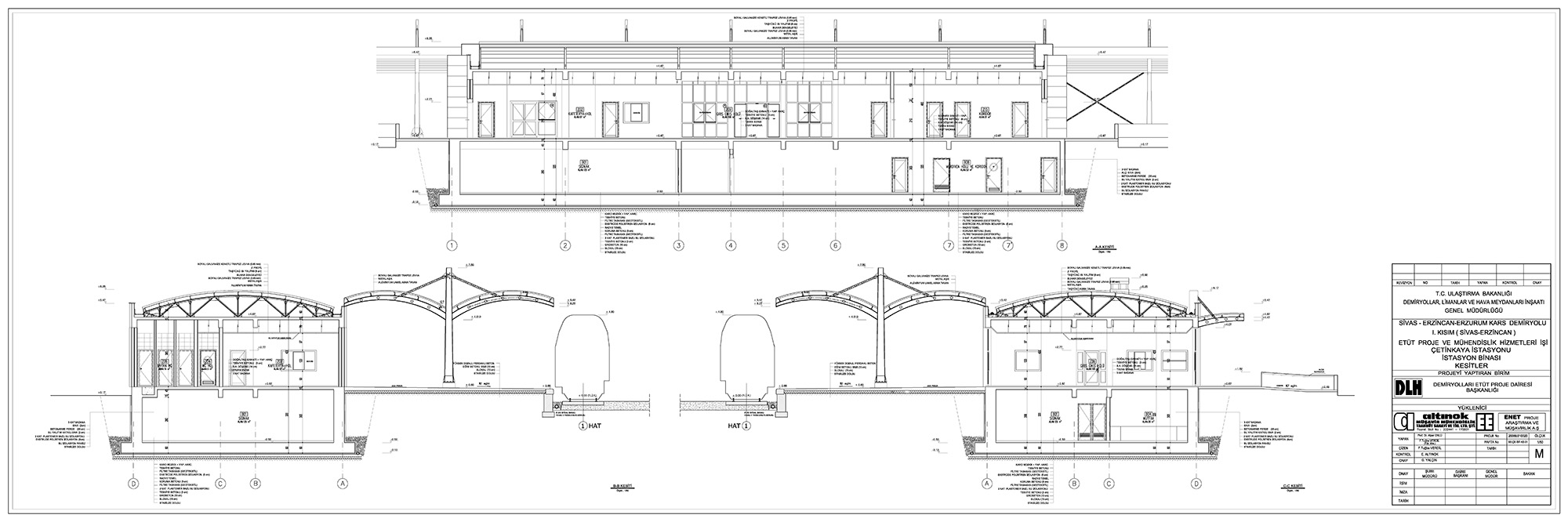
Kesit
2/3
Paylaş
Resmi Orjinal Boyutunda Göster
Çetinkaya Hızlı Tren Garı ve İstasyon Tesisleri
Project Location: Çetinkaya, Sivas
Project Office: AU Architects
Project Type: Railway Buildings
Tasarım Ekibi: Alper Ünlü
Employer: Ulaştırma, Denizcilik ve Haberleşme Bakanlığı, DLH Müdürlüğü
Yardımcı: Tuğba Verdil
Structural Project: Altınok Müşavirlik ve Mühendislik
Mechanical Project: A.Zafer Çuhadar
Electrical Project: A.Zafer Çuhadar
Project Start Date: 2008
Total Construction Area: 5.000m²