plan
9/10
Paylaş
Resmi Orjinal Boyutunda Göster
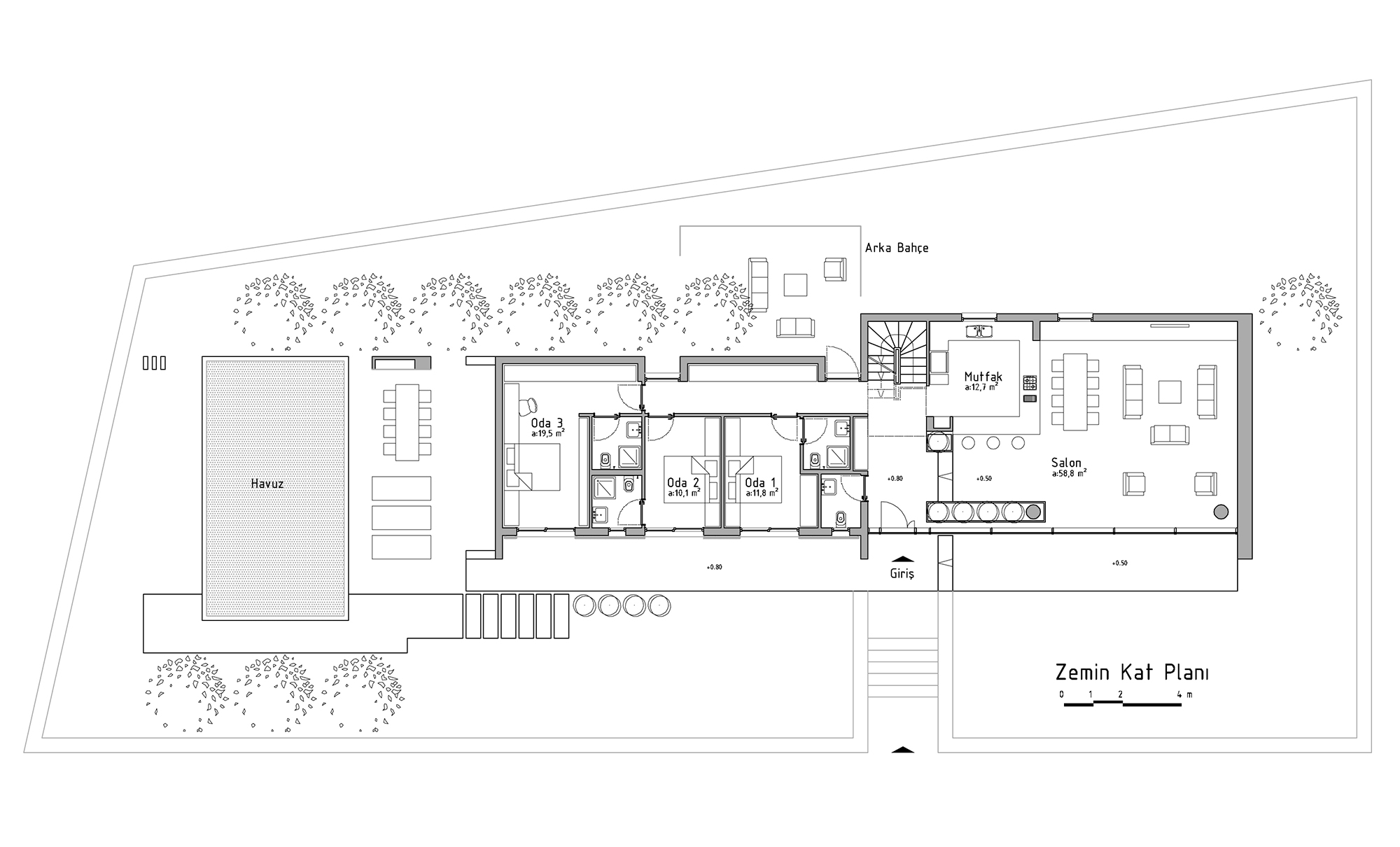
Çeşme Yamaç Evler
Proje Yeri: İzmir
Proje Ofisi: Not Mimarlık
Proje Tipi: Konut Sitesi / Grubu, Tek Ev / Villa
Tasarım Ekibi: Serdar Uslubaş, Merih Feza Yıldırım
İşveren: Yazıt İnşaat
Yardımcı: Gülten Nur Arslan
Proje Başlangıç Yılı: 2012
İnşaat Başlangıç Yılı: 2012
İnşaat Bitiş Yılı: 2012
Arsa Alanı: 1600m²
Toplam İnşaat Alanı: 700m²