7
10/20
Paylaş
Resmi Orjinal Boyutunda Göster
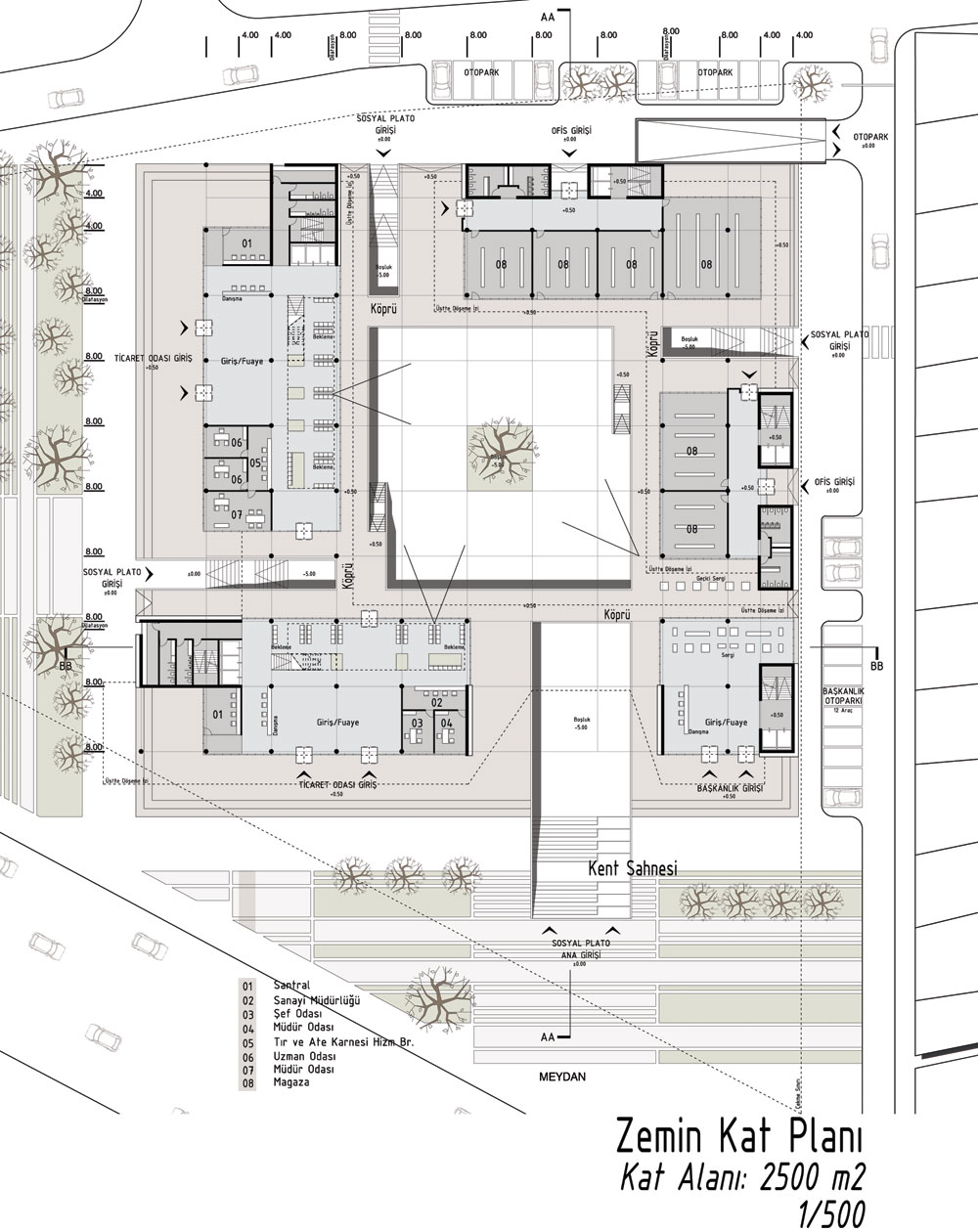
(Eşdeğer 4) MTSO Hizmet Binası ve İş Merkezi
Project Location: Mersin
Project Type: Offices
Proje Tipi Grubu: Eşdeğer Ödül
Tasarım Ekibi: Cihan Sevindik, Mustafa Kaan Özdoğan
Consultant: Doğan Türkkan, Emrah Akpınar