Zone 3
28/36
Paylaş
Resmi Orjinal Boyutunda Göster
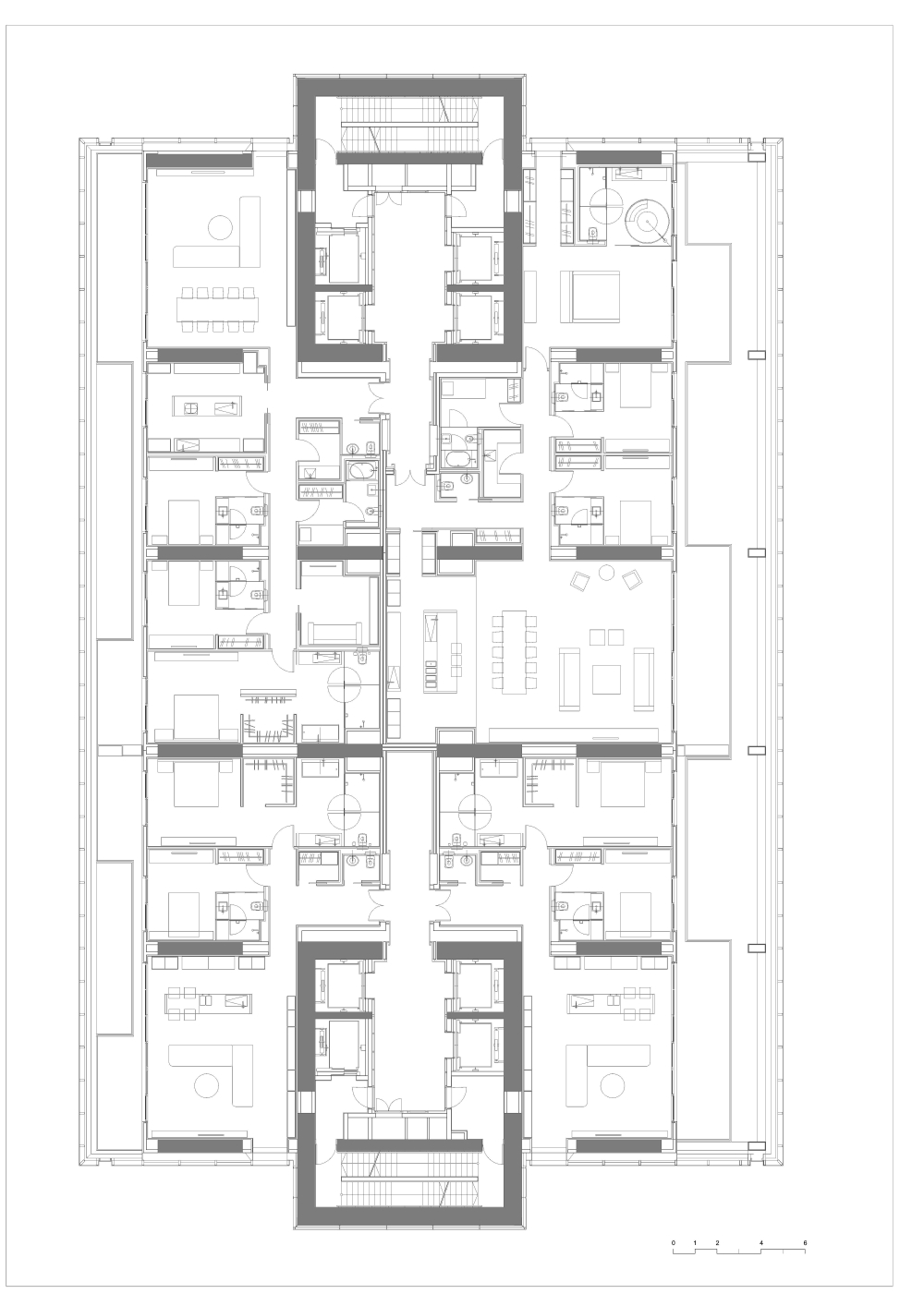
Istanbul Sapphire
Proje Yeri: İstanbul
Proje Ofisi: Tabanlıoğlu Mimarlık
Proje Tipi: Alışveriş Merkezi, Apartman
Proje Tipi Grubu: Konut
Tasarım Ekibi: Melkan Gürsel, Murat Tabanlıoğlu
İşveren: Biskon Yapı
Yardımcı: Murat Cengiz, Aydın Işık, Hakan Bağcı, Ozan Öztepe, Ali Çalışkan, Ahmet Çorapçıoğlu, Ali Eray, Mehmet Vaizoğlu, Recep Semizoğlu, Necmettin Selimoğlu, Salih Yılgörür, Funda Tezel, Selen Ak Avuçlu, Aybige Tek, Merve Yücel, Adnan Tarı, Ayla Ecer
Ana Yüklenici: Biskon Yapı
İç Mekan Projesi: Hande Pusat Silan, Suda Ayşe Karaduman, Derya Genç, Esra Demirtaş, Burcu Biçer Saner, Aslı Aydın, Sinemis Yargıç
Statik Projesi: Balkar Mühendislik
Mekanik Projesi: GN Mühendislik
Elektrik Projesi: HB Teknik Elektrik Mühendislik
Proje Başlangıç Yılı: 2006
Proje Bitiş Yılı: 2006
İnşaat Başlangıç Yılı: 2006
İnşaat Bitiş Yılı: 2011
Arsa Alanı: 11.339 m2
Toplam İnşaat Alanı: 165.169 m2