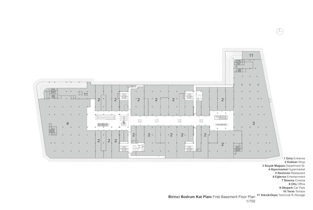
1. Bodrum Kat Planı
15/21
Paylaş
Resmi Orjinal Boyutunda Göster
Terracity Alışveriş Merkezi
Proje Yeri: Antalya
Proje Ofisi: Öncüoğlu + ACP Mimarlık Şehircilik
Proje Tipi: Alışveriş Merkezi
Tasarım Ekibi: Enis Öncüoğlu, Önder Kaya, Cem Altınöz, Cumhur Keskinok
İşveren: EriaPartners, Pramerica Real Estate Investors
Yardımcı: Tevfik Altay Ekti, Umut Fığlalı Kıran, Fatih Kaplanoğlu, Savaş Çakmakkaya, Yolcu Gündüz, Handan Yavuz, Esra Bayındır, Arzu Gençaslan, Seda Ertuğ, Yasin Aşır
Peyzaj Mimarlığı: Promim Çevre Düzenleme, Kentsel Tasarım
İç Mekan Projesi: Öncüoğlu + ACP Mimarlık Şehircilik
Statik Projesi: Ural Mühendislik
Mekanik Projesi: GMD Mühendislik
Elektrik Projesi: Key Mühendislik