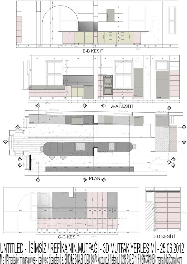
Plan - Kesit
6/9
Paylaş
Resmi Orjinal Boyutunda Göster
Tar-Geri Dönüştürülmüş Mutfak
Project Location: Kuzguncuk, İstanbul
Project Office: MeMA ve merteyiler
Project Type: Restaurant / Café / Bar
Tasarım Ekibi: Mert Eyiler
Employer: Refika Birgul
Yardımcı: Mehmet Ali Yılmaz, Ayşe Dede, Merve Güzel
Project Start Date: 2012
Construction Start Date: 2012