Plan
11/12
Paylaş
Resmi Orjinal Boyutunda Göster
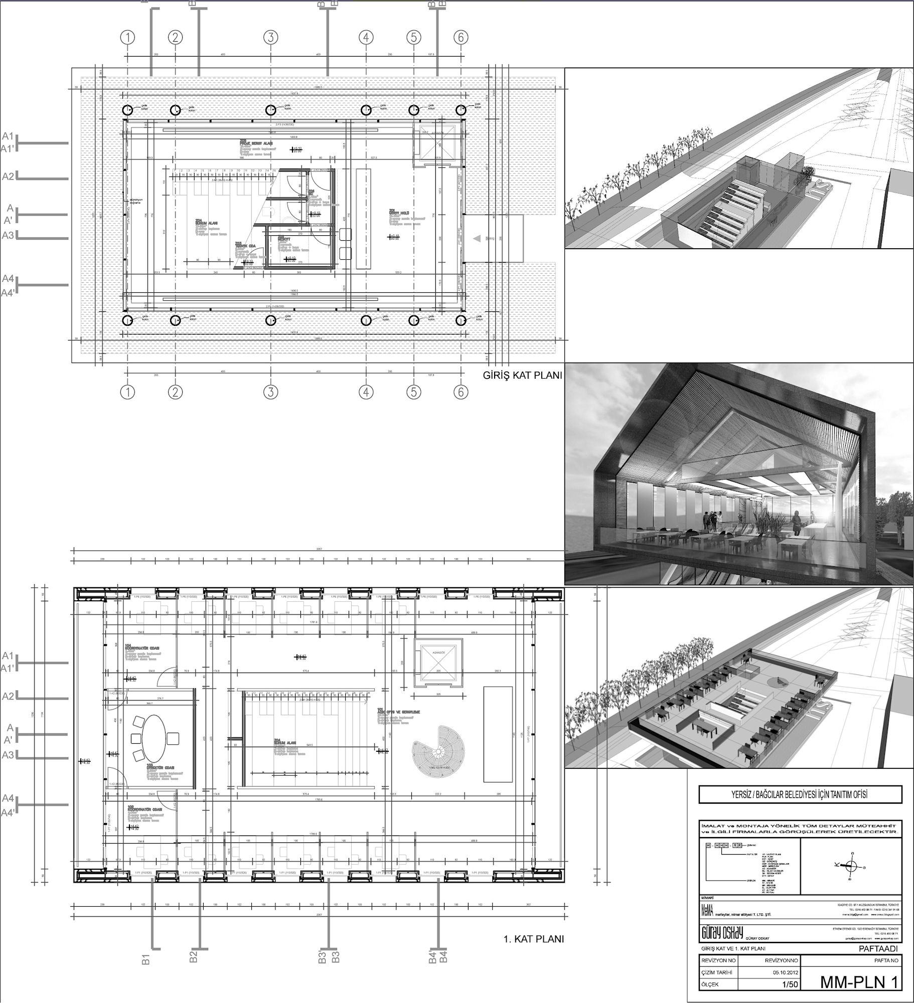
Bağcılar Belediyesi Danışma Birimi
Proje Yeri: Bağcılar, İstanbul
Proje Ofisi: MeMA ve merteyiler
Proje Tipi: Diğer Kamu Yapıları
Proje Tipi Grubu: Kamu
Tasarım Ekibi: Mert Eyiler, Güray Oskay
İşveren: Bağcılar Belediyesi
Yardımcı: Melis Aydın, Mehmet Ali Yılmaz, Emir Atakan Yılmaz, Ayşe Dede
Statik Projesi: Tektaş Mühendislik
Mekanik Projesi: Deniz Mühendislik
Proje Başlangıç Yılı: 2012