06-kutuphane
6/11
Paylaş
Resmi Orjinal Boyutunda Göster
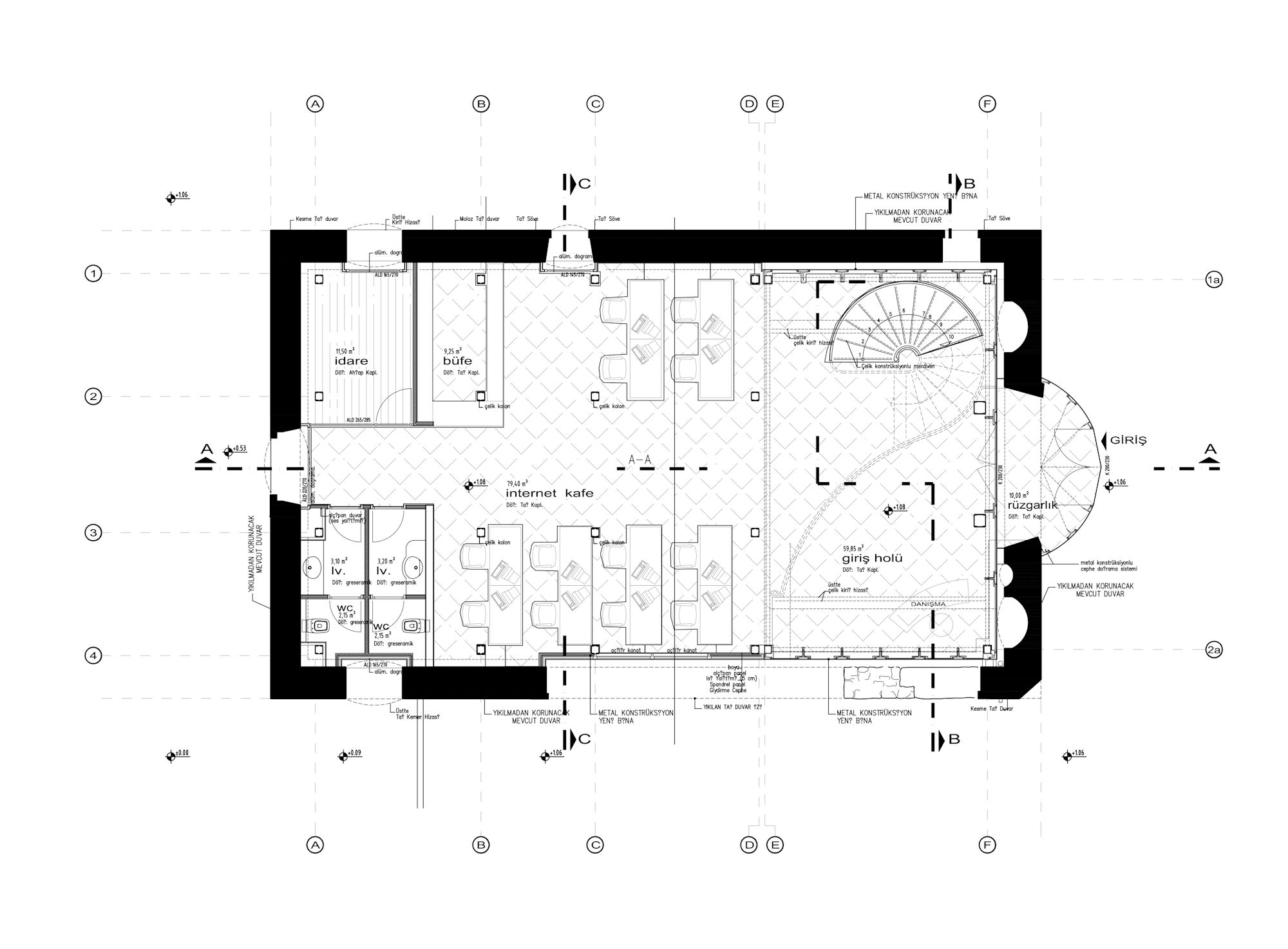
Adnan Büyükdeniz Kütüphanesi Restorasyonu
Proje Yeri: Esenler, İstanbul
Proje Ofisi: M-Ofis Mimarlık
Proje Tipi: Kütüphane
Tasarım Ekibi: Serkan İğdelipınar, A. Sinan Timoçin
İşveren: Esenler Belediyesi
Yardımcı: Burcu Ersan, Fırat Çoban
Statik Projesi: Dilmer Mühendislik
Fotoğraf: Fırat Çoban
Proje Başlangıç Yılı: 2009
İnşaat Başlangıç Yılı: 2009
Arsa Alanı: 900 m2
Toplam İnşaat Alanı: 550 m2