11
5/12
Paylaş
Resmi Orjinal Boyutunda Göster
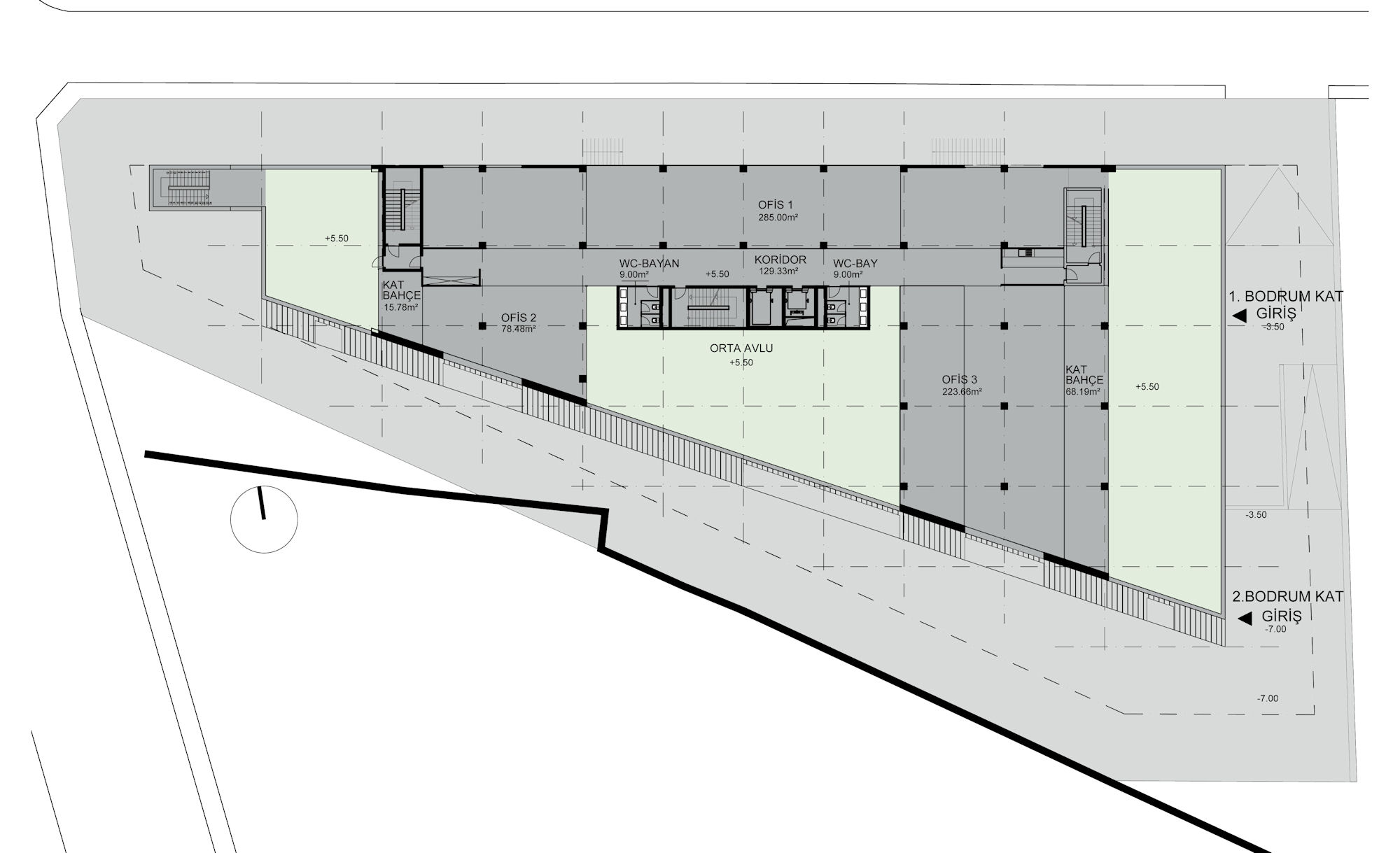
Sancaktepe Ofis
Proje Yeri: Sancaktepe, İstanbul
Proje Ofisi: CeSa Mimarlar
Proje Tipi: Ofis
Tasarım Ekibi: Murat Şahin, İbrahim Çelepöven, Selim Bilgin
İşveren: Medifar Ecza Deposu
Yardımcı: Melike Özyurt, Ömer Durdu, Tzanan Dervis
Proje Başlangıç Yılı: 2012
Arsa Alanı: 3.500 m²
Toplam İnşaat Alanı: 8.000 m²