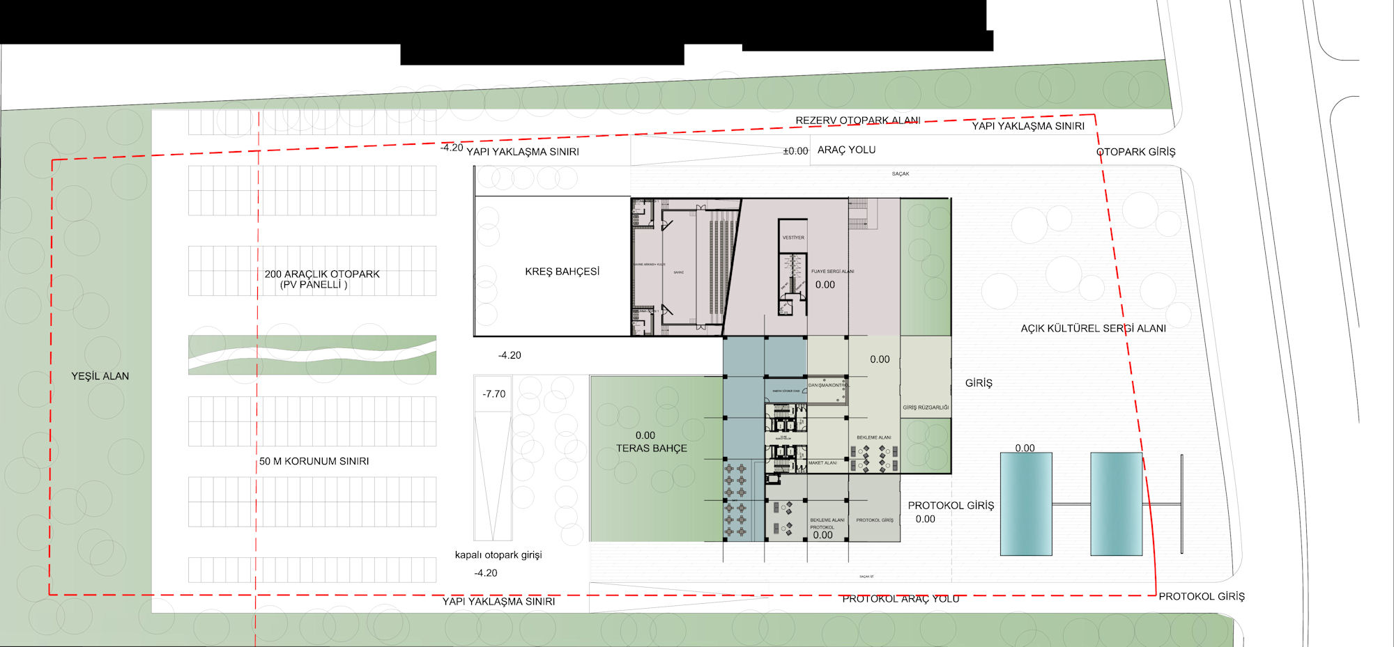
01 vaziyet
10/10
Paylaş
Resmi Orjinal Boyutunda Göster
Yeşil İdari Ofis
Proje Yeri: Halkalı, İstanbul
Proje Ofisi: CeSa Mimarlar
Proje Tipi: Ofis
Tasarım Ekibi: İbrahim Çelepöven
Danışman: Proje Parkı
Yardımcı: Vladimir Calmic
Statik Projesi: Dabanlıoğlu Mühendislik
Mekanik Projesi: Ascon Grup
Elektrik Projesi: Ascon Grup
Proje Başlangıç Yılı: 2012
Arsa Alanı: 25.000 m2