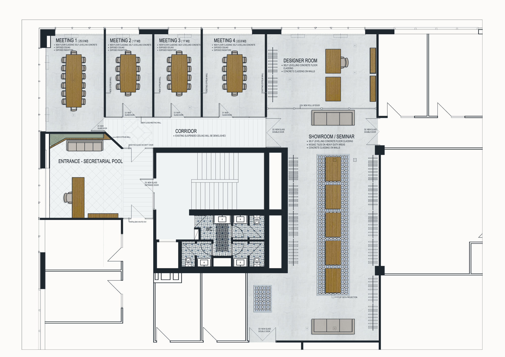
1-general plan
11/13
Paylaş
Resmi Orjinal Boyutunda Göster
Otto Hermes/International İstanbul Ofis & Showroom
Proje Yeri: Yenibosna, İstanbul
Proje Ofisi: Açıkofis Mimarlık
Proje Tipi: Ofis, Mağaza / Showroom
Tasarım Ekibi: Evren Aysev, Fatmagül Aslaner Gegeoğlu
İşveren: Otto Hermes / International
Yardımcı: Yasemin Şahiner, Çiğdem Tabak
İç Mekan Projesi: Açıkofis Mimarlık
Fotoğraf: Fatmagül Aslaner Gegeoğlu
Proje Başlangıç Yılı: Şubat 2011, Şubat 2011
İnşaat Başlangıç Yılı: Haziran 2011, Şubat 2011
Toplam İnşaat Alanı: 380 m²