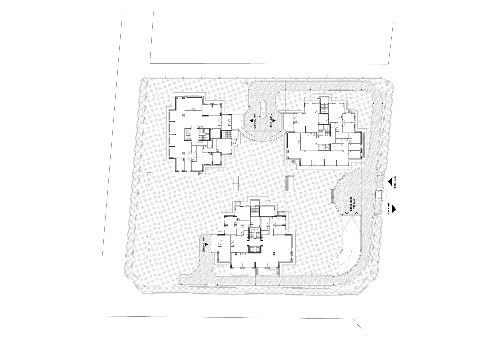
Vaziyet
23/26
Paylaş
Resmi Orjinal Boyutunda Göster
Başyazıcı Premium Kayseri
Proje Yeri: Melikgazi, Kayseri
Proje Ofisi: Sabri Paşayiğit Architects
Proje Tipi: Alışveriş Merkezi, Konut Sitesi / Grubu
Tasarım Ekibi: Sabri Paşayiğit, Ertuğ Yenidemir
İşveren: Başyazıcı Yapı Teknik AŞ
Yardımcı: Elif Zeyrek, Bilgehan Akça, İrem Öngel
Statik Projesi: Sigma Mühendislik
Mekanik Projesi: Meta Mühendislik
Elektrik Projesi: Sıla Mühendislik
Proje Başlangıç Yılı: Haziran 2009
Proje Bitiş Yılı: Şubat 2011
İnşaat Başlangıç Yılı: Şubat 2011
Arsa Alanı: 35.000 m²
Toplam İnşaat Alanı: 74.000 m²