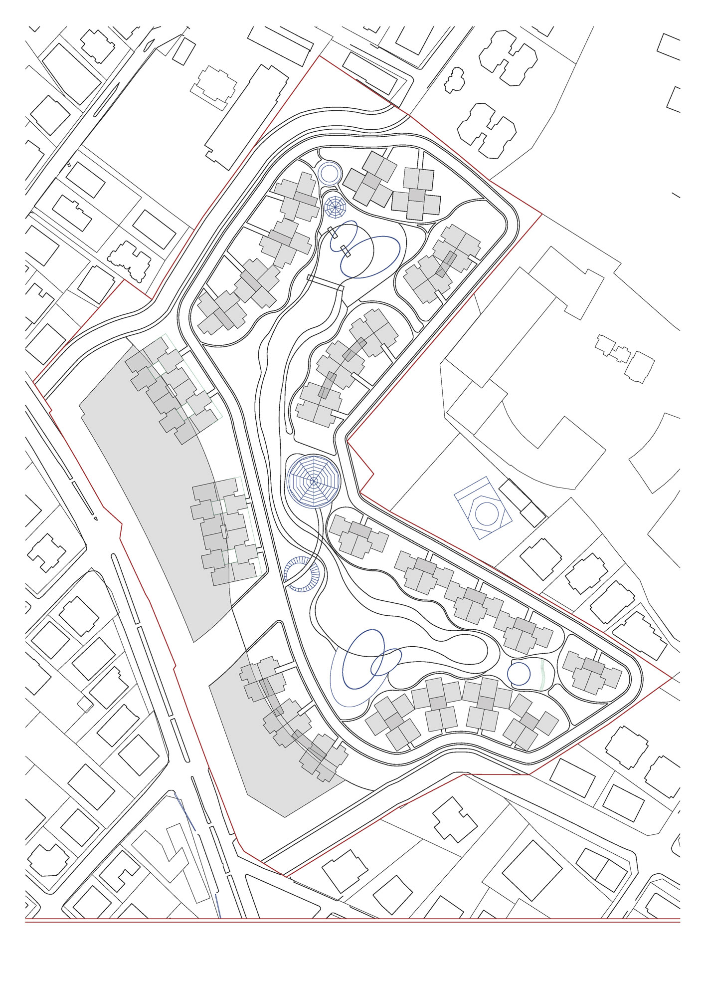
Vaziyet
11/12
Paylaş
Resmi Orjinal Boyutunda Göster
Erenköy Kentsel Dönüşüm Projesi
Proje Yeri: Erenköy, Kadıköy, İstanbul
Proje Ofisi: Sabri Paşayiğit Architects
Proje Tipi: Konut Sitesi / Grubu, Alışveriş Merkezi
Tasarım Ekibi: Sabri Paşayiğit, Özay Özkan
İşveren: Eroglu Yapı İnşaat ve Gayrimenkul Geliştirme
Yardımcı: Ebru Atıcı, Gökhan Gerkuş
Proje Başlangıç Yılı: Mayıs 2012
Proje Bitiş Yılı: Temmuz 2012
Toplam İnşaat Alanı: 272.300 m²