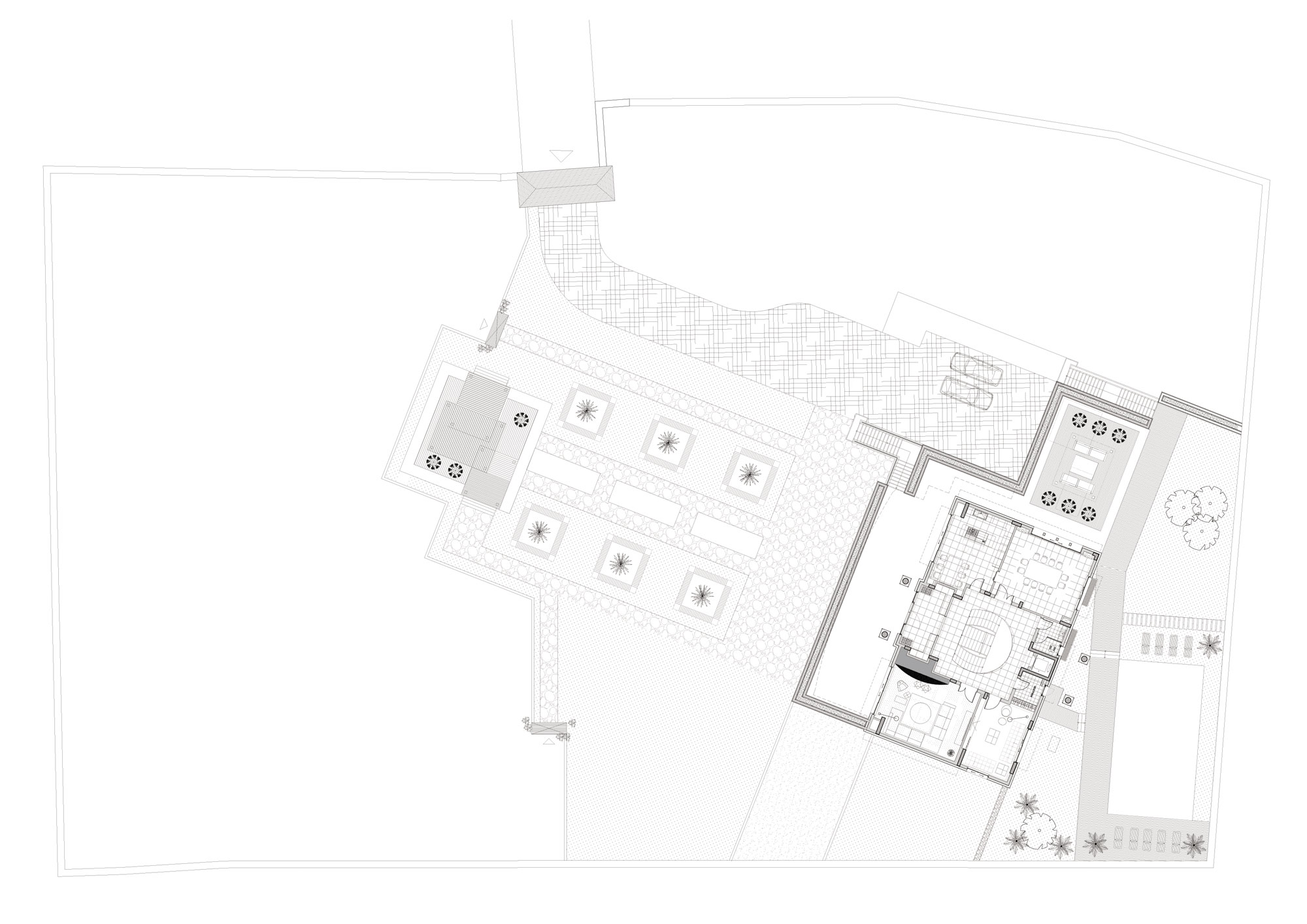
Vaziyet
12/12
Paylaş
Resmi Orjinal Boyutunda Göster
Mehmet Konuk Evi
Proje Yeri: Kayseri
Proje Ofisi: Sabri Paşayiğit Architects
Proje Tipi: Tek Ev / Villa
Tasarım Ekibi: Sabri Paşayiğit, Ertuğ Yenidemir, Fatma Sert
İşveren: Mehmet Konuk
Statik Projesi: Uzun Yapı
Mekanik Projesi: Metsis
Elektrik Projesi: Sıla Mühendislik
Proje Başlangıç Yılı: 2009
Proje Bitiş Yılı: 2010
İnşaat Başlangıç Yılı: 2010
İnşaat Bitiş Yılı: 2012