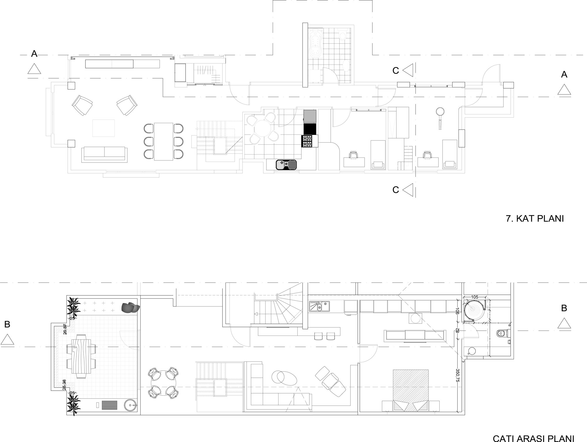
Plan
17/17
Paylaş
Resmi Orjinal Boyutunda Göster
A.P. Evi
Proje Yeri: Kadıköy, İstanbul
Proje Ofisi: Kaan Kamaşak Mimarlık
Proje Tipi: Apartman
Proje Tipi Grubu: Konut
Tasarım Ekibi: Kaan Kamaşak, Birce Mete
İç Mekan Projesi: Kaan Kamaşak, Birce Mete
Fotoğraf: İsa Arslan
Proje Başlangıç Yılı: Şubat 2011
Proje Bitiş Yılı: Kasım 2011
İnşaat Başlangıç Yılı: Kasım 2011
İnşaat Bitiş Yılı: Şubat 2012
Toplam İnşaat Alanı: 235 m²