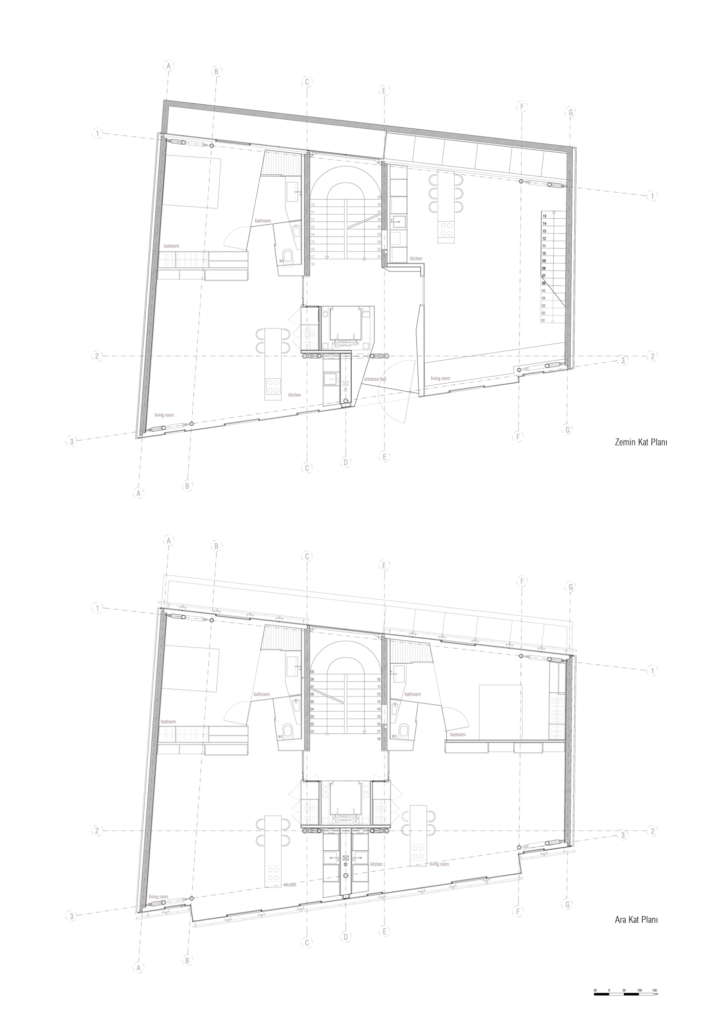
Zemin ve Normal Kat Planı
50/53
Paylaş
Resmi Orjinal Boyutunda Göster
Ipera25
Project Location: İstanbul
Project Office: AAW Ahmet Alataş Workshop
Project Type: Apartment
Proje Tipi Grubu: Konut
Tasarım Ekibi: Ahmet Alataş
Employer: İpera Yirmibeş İnşaat Taahhüt Gayrimenkul San. ve Tic. AŞ
Yardımcı: Özge Güngör Ülüğ, Dilan Yüksel, Emir Elmaslar, Gabriella Colacicco, Emre Açar
Ana Yüklenici: İpera Yirmibeş İnşaat Taahhüt Gayrimenkul San. ve Tic. AŞ
Structural Project: Emre İstikam Proje ve İnşaat Hizmetleri
Mechanical Project: Baray Isı Sistemleri İnş. San. ve Dış Tic. Ltd. Şti.
Electrical Project: Bordo Mühendislik
Project Start Date: 2009
Project End Date: 2010
Construction Start Date: 2010
Construction End Date: 2012
Building Plot Area: 154
Total Construction Area: 1100