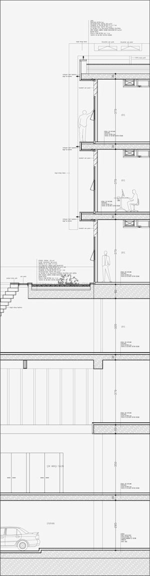
Sistem Kesiti – 1/50
21/22
Paylaş
Resmi Orjinal Boyutunda Göster
3. Mansiyon, Çanakkale Belediyesi Yeşil Yerel Yönetim ve Kültür Merkezi
Project Location: Çanakkale
Project Type: Public Administration Building, Cultural Center
Proje Tipi Grubu: 3. Mansiyon
Tasarım Ekibi: Onat Öktem, Mehmet Ziya İmren
Consultant: Ufuk Cesur, K. Uygar Candemir
Yardımcı: Yakup Koçak, Tamara Nazari
Peyzaj Mimarlığı: Özge Gökmen
Structural Project: Ekin Ekiz
Mechanical Project: Servet Seden Çakıroğlu
Electrical Project: Yücel Cabadağ