29344
13/19
Paylaş
Resmi Orjinal Boyutunda Göster
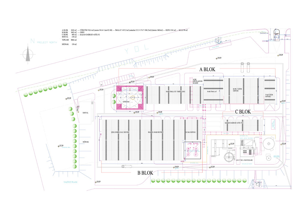
Beylerbeyi Rakı Fabrikası
Proje Yeri: Manisa, Akhisar
Proje Ofisi: BİR+OK A.Ş., Fabrika
Tasarım Ekibi: Şükrü Kocagöz
İşveren: Sarper İçecek San. AŞ
Yardımcı: Binnur Demirtaş
Proje Başlangıç Yılı: 2006
Proje Bitiş Yılı: 2006
İnşaat Başlangıç Yılı: 2006
İnşaat Bitiş Yılı: 2007
Toplam İnşaat Alanı: 8.066 m²