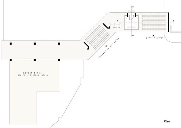
Plan
14/18
Paylaş
Resmi Orjinal Boyutunda Göster
Cerçelik Demir, Çelik Fabrikası Giriş Ünitesi
Proje Yeri: İzmir
Proje Ofisi: İki Artı Bir Mimarlık
Proje Tipi: Giriş Kapısı / Karşılama Ünitesi
Tasarım Ekibi: Deniz Dokgöz, Ferhat Hacıalibeyoğlu, Orhan Ersan
İşveren: Cerçelik Endüstrisi AŞ
Proje Başlangıç Yılı: 2006
Proje Bitiş Yılı: 2006
İnşaat Başlangıç Yılı: 2007
İnşaat Bitiş Yılı: 2007
Arsa Alanı: 80 m²
Toplam İnşaat Alanı: 9 m²